Erweiterte Suche
Andere Eigenschaften
Suchagent aktivieren
Exklusive Anzeigen

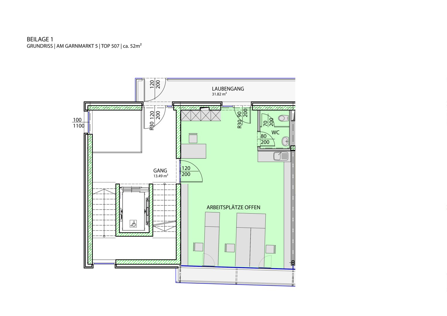
Praxis- oder Bürofläche am Garnmarkt 5 – ca. 52 m²

Am Garnmarkt 5, ,

1 Zimmer
zu Favoriten hinzufügen
teilen
Suchergebnisse

Objektbeschreibung

Für die ca. 52 m² große Gewerbefläche wird ein Nachfolger gesucht. Die Fläche ist optimal für eine Praxis, Kanzlei oder ein Büro.

Tiefgaragen-Stellplätze nach Absprache 

 

Wichtige Facts:

* kann als Büro oder Praxis genutzt werden
* Moderne, sehr schön belichtete Räumlichkeiten
* 1 Teeküche mit Abwasch 

Mehr lesen

Dokumente
Adresse: Am Garnmarkt 5
Ort:
Bezirk:
Bundesland:
PLZ: 6840
Land: Österreich
Objekt ID: 2196697
Nutzfläche: 0 m2
Gesamtfläche: 0 m2
Ziimmer insgesamt: 1
Schlafzimmer: 1
Badezimmer: 1
Miete (netto) €: 827.6
Betriebskosten €: 162.85
Nutzungsart: Gewerbe
Provisionspflichtig: ja
Kaution: 3 Bruttomonatsmieten
HWB: 19 kWh/(m²*a)
HWB Klasse: A
FGEE: 0.7
E-Ausweis Gültig Bis:: 09.08.2031
Energieausweis Art: Bedarf
Beziehbar: 01.01.2026
Etage: 1. Etage
WC: 1
barrierefrei
Personenaufzug
Parkett
Dusche
Fußbodenheizung
Abstellraum
rollstuhlgerecht
Massiv
Massivbauweise
vollerschlossen
Fernwärme
seniorengerecht
Räume veränderbar
Teeküche
Tiefgarage
Flachdach
DV-Verkabelung

Rimo Immobilien GmbH
Daniel Ströhle

Kontaktaufnahme









    • Preisinformation
      Miete netto827,60 €
      Betriebskosten162,85 €

    Vergleichen