Objektbeschreibung
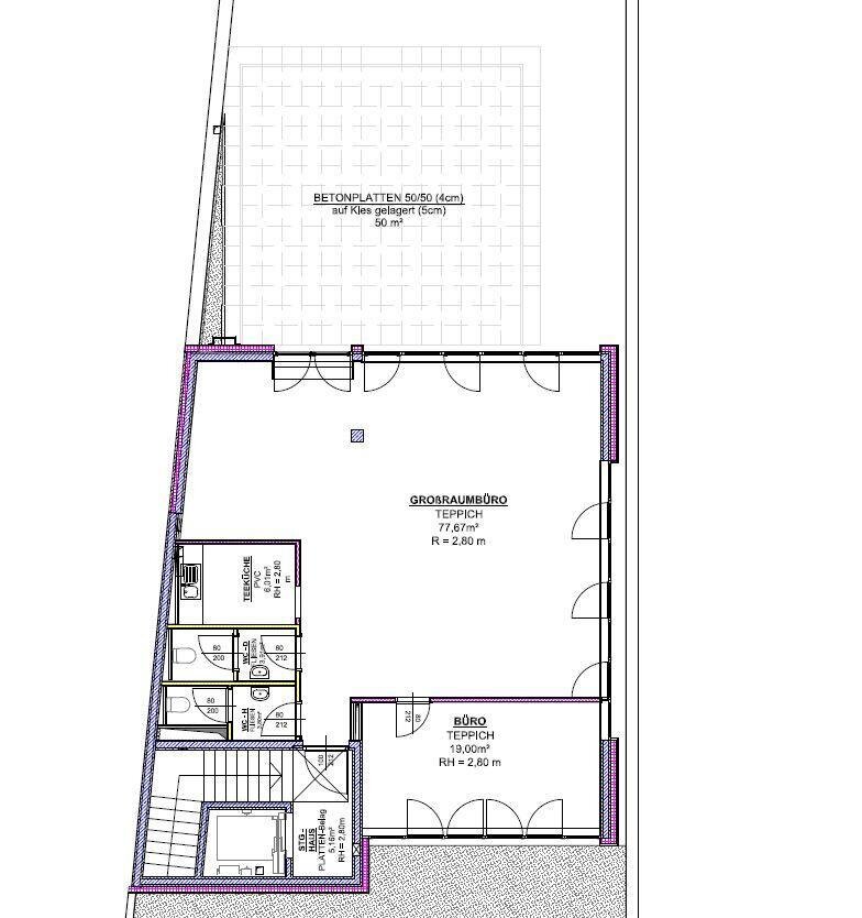
Willkommen in Ihrer neuen Bürofläche in der pulsierenden Stadt Linz! Diese attraktive Immobilie befindet sich in der 4. Etage eines modernen Gebäudes und bietet Ihnen die perfekte Grundlage für Ihr berufliches Vorhaben.
Mit einer großzügigen Fläche von 115 m² können Sie Ihr Büro oder Ihre Praxis individuell gestalten und an
Mehr lesen
Objekt ID: 2197028
Nutzfläche: 0 m2
Gesamtfläche: 0 m2
Ziimmer insgesamt: 0
Schlafzimmer: 0
Badezimmer: 0
Miete (netto) €: 1725
USt €: 402.96
Nutzungsart: Gewerbe
Kaution: 7.370,00 €
HWB: 154,13 kWh/(m²*a)
Energieausweis Art: Bedarf
Balkon/Terrassen - Fläche: 50
Beziehbar: Sofort
Etage: 4. Etage
WC: 2






