Erweiterte Suche
Suchagent aktivieren
Exklusive Anzeigen

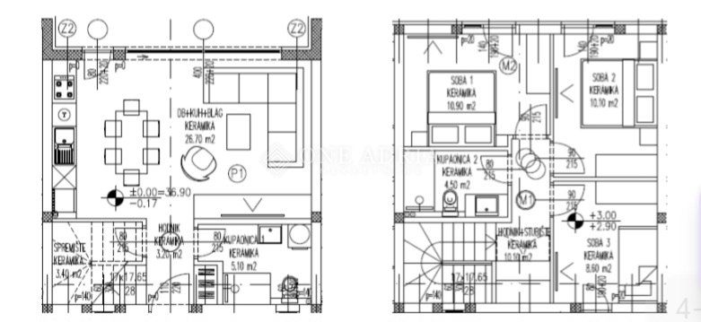
Wohnung Pag, 82,60m2

€ 339.000,00

,

4 Zimmer
zu Favoriten hinzufügen
teilen
Suchergebnisse

Objektbeschreibung

ID CODE: 6830

Ort:
Bezirk:
PLZ: 23250
Land: Croatia
Objekt ID: 2206609
Preis: € 339.000
Nutzfläche: 0 m2
Gesamtfläche: 0 m2
Ziimmer insgesamt: 4
Schlafzimmer: 4
Badezimmer: 0
Nutzungsart: Wohnen
Provisionspflichtig: ja

Ähnliche Objekte

vergleichen
1762184175 1000195546

Wohnung Pag, 87,60m2

€ 359.000
4
Schlafzimmer
Mai 8, 2026
vergleichen
1762185096 1000195540

Wohnung Pag, 87,60m2

€ 359.000
4
Schlafzimmer
Mai 8, 2026
vergleichen
1754776769 dji fly 20250809 174133 0 1754754093288 photo low quality

Wohnung Pag, 79,55m2

€ 243.000
3
Schlafzimmer
1
Badezimmer
Mai 6, 2026


Maja Mataija

Kontaktaufnahme









    • Preisinformation
      Objektpreis339.000,00 €

    Vergleichen