Objektbeschreibung
Investitionsobjekt: Solides Apartmenthaus mit drei getrennten Wohneinheiten in 4061 Pasching
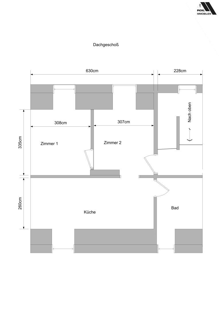
Nutzen Sie die Gelegenheit, in dieses solide Apartmenthaus in 4061 Pasching zu investieren. Die Immobilie besteht aus drei vollvermieteten Wohneinheiten, zwei Vollgeschosse sowie eine Dachgeschosswohnung mit Mansarde mit jeweils ca. 50 m², die derzeit als Arbeiterzimmer genutzt werden. Der Zustand der Immobilie ist gut und
Mehr lesen
Objekt ID: 2211901
Preis: € 397.000
Nutzfläche: 150 m2
Gesamtfläche: 150 m2
Ziimmer insgesamt: 0
Schlafzimmer: 0
Badezimmer: 3
Betriebskosten €: 600
Nutzungsart: Gewerbe
Provisionspflichtig: ja
Provision: 3% des Kaufpreises zzgl. 20% USt.
WC: 3
Gas
offene Küche
Offene Küche
Freiplatz
Massiv
Massivbauweise
Kabelkanäle






