Objektbeschreibung
Zentral und dennoch ruhig wohnen?
Dies ist mit unserem neuen Projekt OASIS Park Side in Andritz möglich. Profitieren Sie von kurzen Anfahrtswegen in die Innenstadt sowie der ruhigen Lage am Schöcklbach.
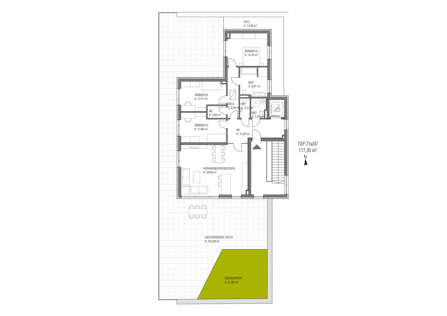
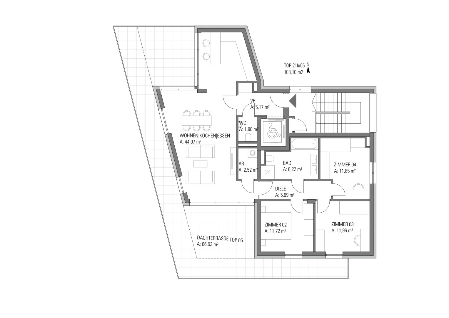
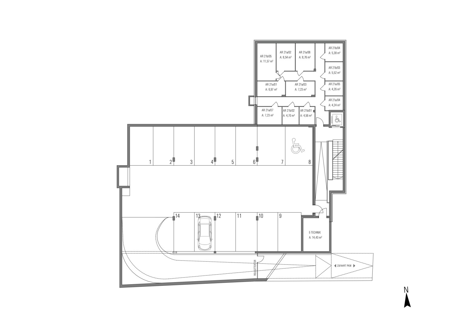
In der Radegunder Straße errichten wir zwei Häuser mit insgesamt 12 Wohneinheiten. Die beiden Gebäude mit sieben bzw. fünf
Mehr lesen
Objekt ID: 221352
Nutzfläche: 0 m2
Gesamtfläche: 0 m2
Ziimmer insgesamt: 0
Schlafzimmer: 0
Badezimmer: 0
Nutzungsart: Wohnen
Beziehbar: 2025
Neubau
Personenaufzug
Parkett
Fußbodenheizung
Fahrradraum
Rollläden
Massiv
Massivbauweise
Fernwärme
Gartennutzung
Tiefgarage
Flachdach
Neubaustandard
Ähnliche Objekte
Großzügige 3-Zimmer-Wohnung mit Loggia in To...
€ 289.999
3
Schlafzimmer
1
Badezimmer
89 m2
Größe
April 18, 2026
Erstbezug und Ruhelage in Mariatrost: modern...
€ 753.256.88
4
Schlafzimmer
1
Badezimmer
100 m2
Größe
April 18, 2026























