Erweiterte Suche
Suchagent aktivieren
Exklusive Anzeigen

| PROVISIONSFREI | BELAGSFERTIG | GROSSER BALKON |

€ 365.000,00

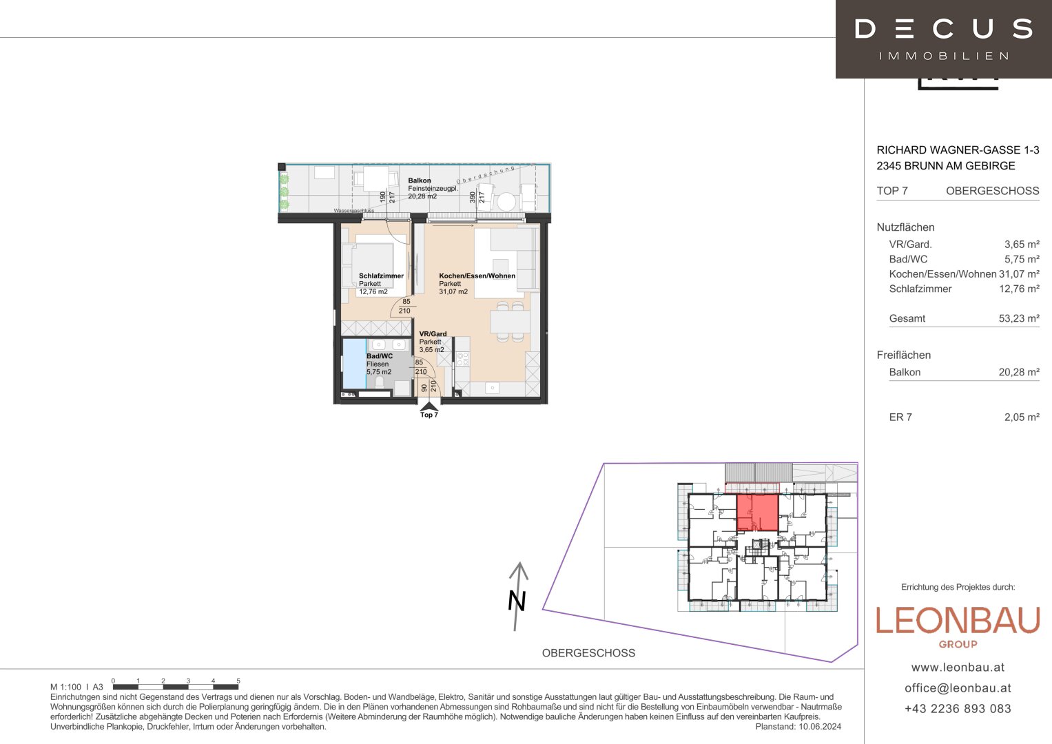
Richard Wagner-Gasse, ,

53.232 Zimmer
zu Favoriten hinzufügen
teilen
Suchergebnisse

Objektbeschreibung

PROVISIONSFREIER NEUBAU MIT AUSSERGEWÖHNLICHER ARCHITEKTUR

 

AUSSTATTUNG

 

*
Heizsystem: Moderne Wärmepumpe für energieeffiziente und nachhaltige Beheizung

*
Belagsfertig: Die Wohnung kann selbst oder durch den Bauträger nach Vereinbarung fertiggestellt werden

*
Sonnenschutz: Raffstores-Außenjalousien für optimalen Licht- und Wärmeschutz

*
Freiflächen:


Mehr lesen

Adresse: Richard Wagner-Gasse
Bezirk:
Bundesland:
PLZ: 2345
Land: Österreich
Objekt ID: 2213765
Preis: € 365.000
Nutzfläche: 53 m2
Gesamtfläche: 74 m2
Ziimmer insgesamt: 2
Schlafzimmer: 2
Badezimmer: 1
Nutzungsart: Wohnen
Provisionspflichtig: nein
Provision: Provision bezahlt der Abgeber.
HWB: 34 kWh/(m²*a)
HWB Klasse: B
FGEE: 0.75
E-Ausweis Gültig Bis:: 19.07.2032
Energieausweis Art: Bedarf
Anzahl Balkone: 1
Balkon/Terrassen - Fläche: 20
Etage: 1. Etage
WC: 1
Balkon
Neubau

Ähnliche Objekte

vergleichen
6e2PcZV1MICkfFeOnZBeJJ

Klima + Garage + Balkon & Dachgeschoss &...

€ 299.000
3
Schlafzimmer
1
Badezimmer
71 m2
Größe
Mai 9, 2026
vergleichen
3ivyJMdvJaokMZ5FUIwpNK

*Uneinsehbar – *Fernblick – Sonn...

€ 379.000
5
Schlafzimmer
2
Badezimmer
118 m2
Größe
Mai 8, 2026
vergleichen
80 m² Dachterrasse nach Südwesten

Anninger-Blick: Penthouse-Wohnung | 131 m² W...

€ 790.000
5
Schlafzimmer
2
Badezimmer
131 m2
Größe
Mai 4, 2026

DECUS Immobilien GmbH
Nicolas Putzlager

Kontaktaufnahme









    • Preisinformation
      Objektpreis365.000,00 €

    Vergleichen