Objektbeschreibung
In leicht erhöhter Aussichtslage Nähe Hitzendorf nur ca. 12km von Graz entfernt steht diese moderne bezugsfertige Immobilie mit rund 168m2 Wohnfläche und einem durchdachten Grundriss.
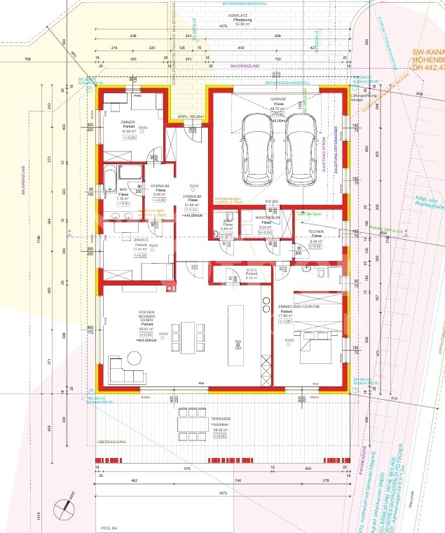
Grundriss & Raumaufteilung
Diese Neubau-Immobilie vereint Großzügigkeit mit funktionaler Raumaufteilung.
*
Offener Wohn-/Essbereich: Herzstück der Immobilie ist der lichtdurchflutete Wohn- und Essbereich
Mehr lesen
Objekt ID: 2217710
Preis: € 865.000
Nutzfläche: 168 m2
Gesamtfläche: 1.034 m2
Ziimmer insgesamt: 4
Schlafzimmer: 4
Badezimmer: 2
Nutzungsart: Wohnen
Provisionspflichtig: ja
Provision: 3% des Kaufpreises zzgl. 20% USt.
HWB: 55,70 kWh/(m²*a)
FGEE: 0.75
E-Ausweis Gültig Bis:: 08.08.2032
Energieausweis Art: Bedarf
WC: 3
Abstellräume: 1
barrierefrei
Neubau
Gäste-WC
Parkett
Bad mit Fenster
Fußbodenheizung
offene Küche
Abstellraum
Offene Küche
Garage
Luft-Wärmepumpe
schlüsselfertig mit Bodenplatte
Swimmingpool
Flachdach



