Objektbeschreibung
Objekt und Lage:
Das top-gepflegte Bürohaus mit optimaler Zugänglichkeit befindet sich in unmittelbarer Nähe zum Praterstern.
Das gesamte Gebäude erschließt sich über einen großzügigen Innenhof, in welchen man über den Haupteingang gelangt.
Vom Innenhof aus, führen mehrere Stiegenhäuser in die Büroetagen.
Die Lage des Pharos-Hauses ist nur ca. 5 Gehminuten von
Mehr lesen
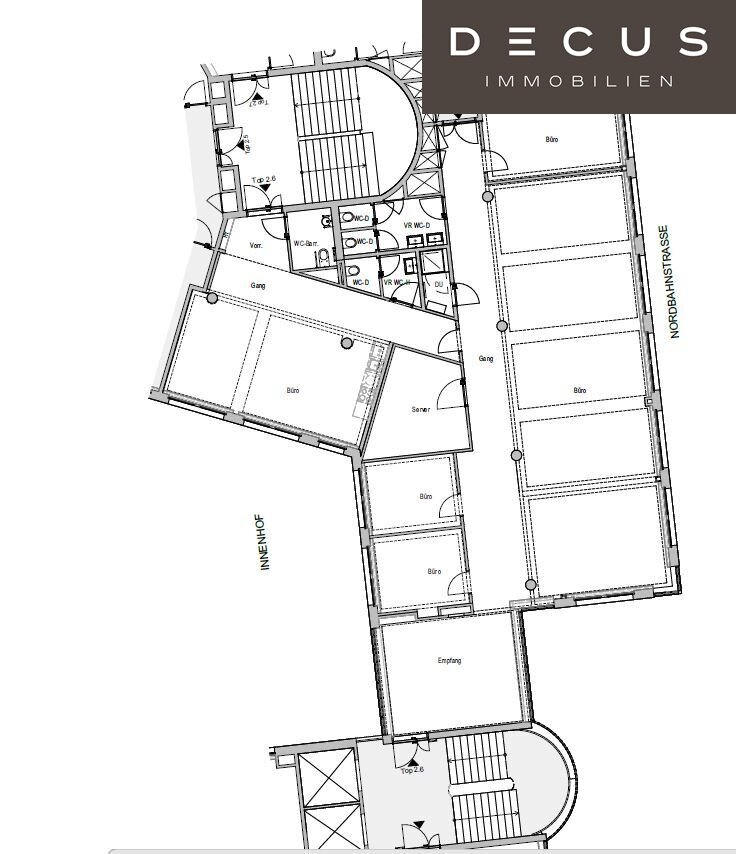
Objekt ID: 2224635
Nutzfläche: 0 m2
Gesamtfläche: 265 m2
Ziimmer insgesamt: 0
Schlafzimmer: 0
Badezimmer: 0
Miete/m2 €: 13
Miete (netto) €: 3445.91
Betriebskosten €: 853.53
Nutzungsart: Gewerbe
HWB: 92 kWh/(m²*a)
Energieausweis Art: Bedarf
Etage: 2. Etage






















