Objektbeschreibung
Rarität in der Wachau – Gasthof „Zur Venus“ mit Dachausbau-Potenzial
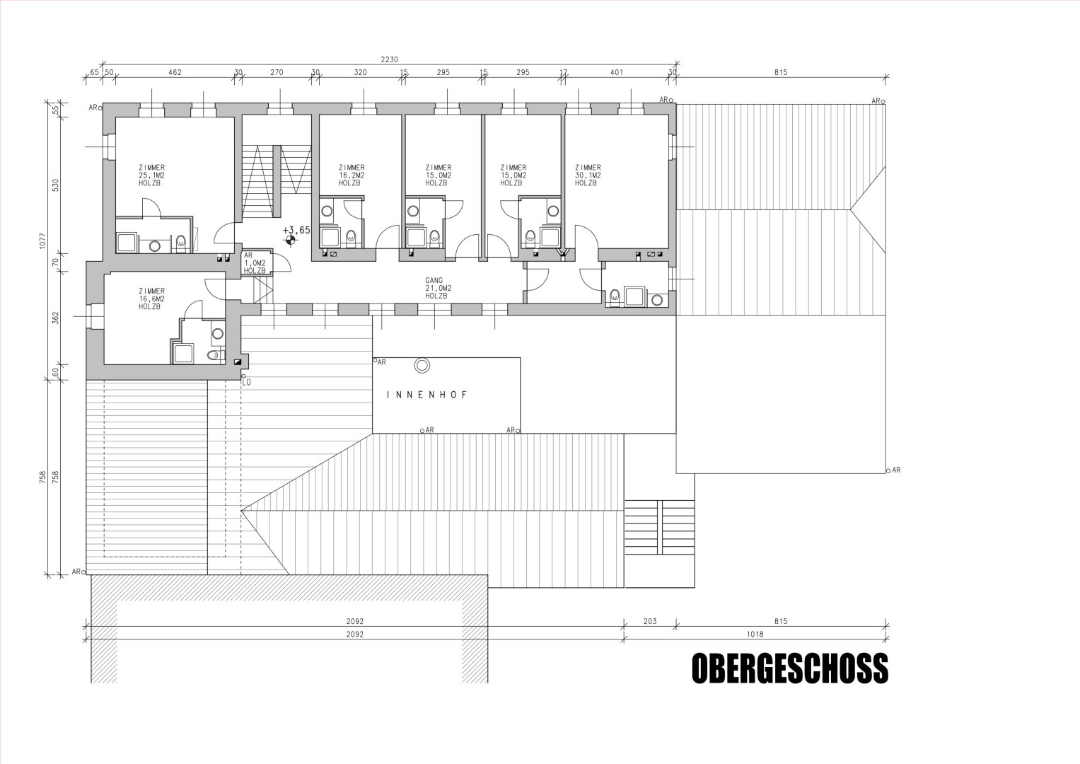
In Willendorf, dem Fundort der weltberühmten _Venus von Willendorf_, steht ein traditionsreicher Gasthof in Toplage zum Verkauf. Das Ensemble wurde 2012 behutsam modernisiert und bietet rund 180 Sitzplätze in mehreren stimmungsvollen Bereichen: Terrasse mit Fernblick, Steinsaal für Feste & Seminare, Schank/Stüberl als
Mehr lesen
Objekt ID: 2225543
Preis: € 1.780.000
Nutzfläche: 0 m2
Gesamtfläche: 770 m2
Ziimmer insgesamt: 0
Schlafzimmer: 0
Badezimmer: 0
Nutzungsart: Anlage
Provisionspflichtig: nein
Provision: Provision bezahlt der Abgeber.
Balkon/Terrassen - Fläche: 49
vollmöbliert
Einbauküche
Gäste-WC
Parkett
Kamin
Zentralheizung
offene Küche
Abstellraum
Offene Küche
Klimaanlage
Freiplatz
Massiv
Massivbauweise
Wasch-/Trockenraum
Gastterrasse
Pissoir
Teeküche
Holz-Hackschnitzel
Wintergarten
Pyramidendach









