Objektbeschreibung
WOHNEN UND GENIESSEN IM SÜDWESTEN VON WIEN! PERFEKTE INFRASTRUKTUR – NÄHE SCHÖNBRUNN!
Willkommen im neuen Maßstab des urbanen Wohnens in 1120 Wien!
Hier wurde ein exklusives Neubauprojekt errichtet, das höchste Ansprüche an Lebensqualität und Komfort stellt. In sehr guter Wohnlage des 12. Bezirkes Wiens entstand dieses Neubauprojekt, bei dem 37 hochwertig
Mehr lesen
Objekt ID: 2234623
Preis: € 1.599
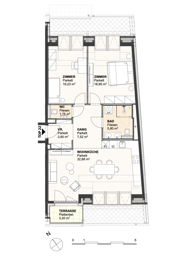
Nutzfläche: 87 m2
Gesamtfläche: 90 m2
Ziimmer insgesamt: 3
Schlafzimmer: 3
Badezimmer: 1
Miete (netto) €: 1253.06
USt €: 145.37
Gesamtbelastung €: 1599
Nutzungsart: Wohnen
Provisionspflichtig: nein
Kaution: 3 Bruttomonatsmieten
HWB: 29,60 kWh/(m²*a)
HWB Klasse: B
FGEE: 0.69
E-Ausweis Gültig Bis:: 07.06.2031
Energieausweis Art: Bedarf
Balkon/Terrassen - Fläche: 3
Beziehbar: sofort
Etage: 2. Etage / 2. Liftstock
WC: 1
barrierefrei
Neubau
Personenaufzug
Gäste-WC
Dusche
Fußbodenheizung
Kabel/Sat-TV
offene Küche
Offene Küche
Rollläden
rollstuhlgerecht
Estrich
schlüsselfertig mit Keller
seniorengerecht
Räume veränderbar
Tiefgarage
Erdwärme
Ähnliche Objekte
Erstbezug – Coole 2 Zimmer Wohnung mit...
€ 1.395.35
2
Schlafzimmer
1
Badezimmer
56 m2
Größe
November 17, 2025
@@Modernes 3-Zimmer-Apartment in 1190 Wien –...
€ 1.820.01
3
Schlafzimmer
1
Badezimmer
84 m2
Größe
November 17, 2025
VIENNA TWENTYTWO I Kagran U-Bahn U1 I Hochwe...
€ 1.501.76
2
Schlafzimmer
1
Badezimmer
47 m2
Größe
November 17, 2025






