Objektbeschreibung
Ruhiges Dachgeschoß-Eigentum in schöner Lage mit Terrasse!
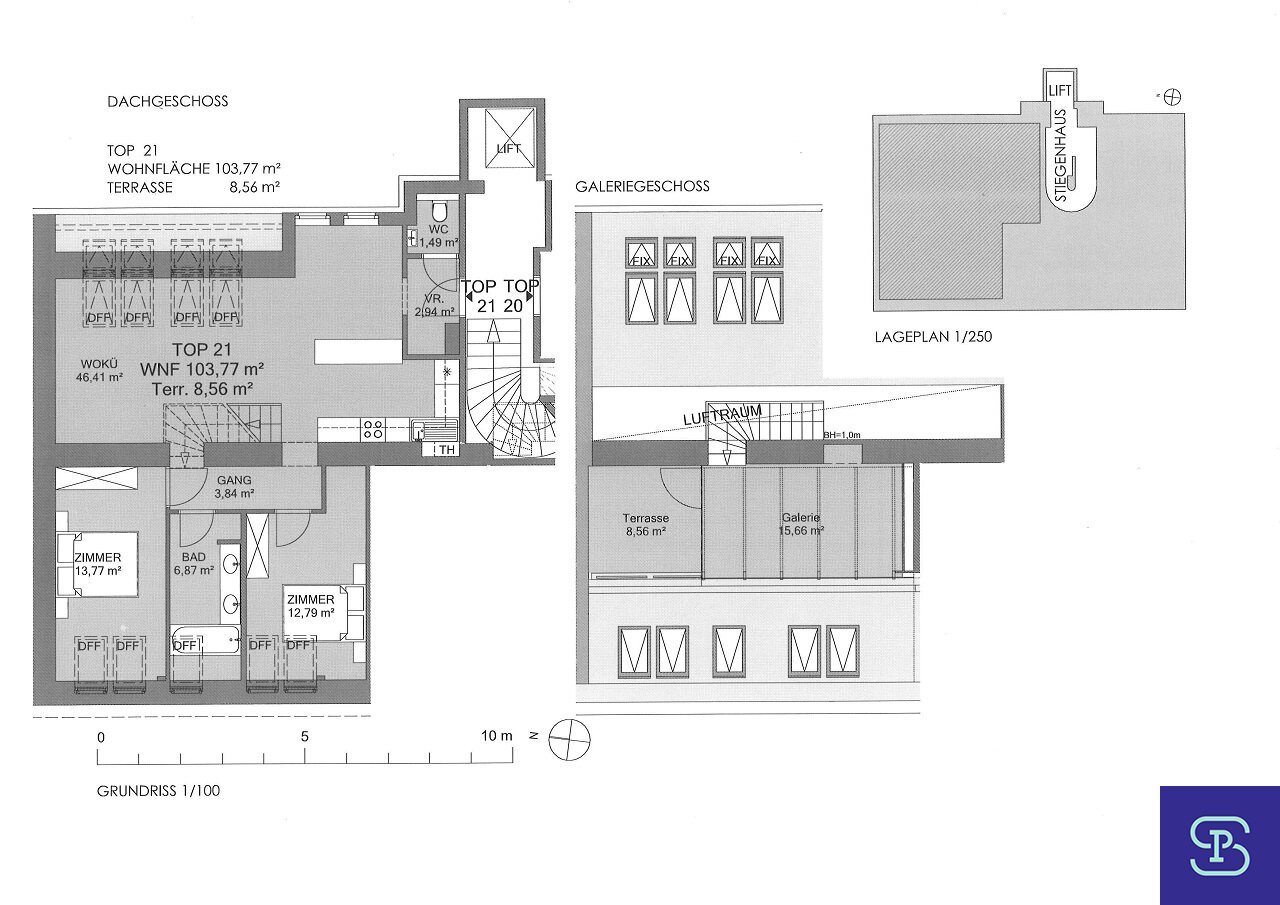
Diese klimatisierte Wohnung befindet sich im Dachgeschoß (4. Liftstock) eines schönen Zinshauses in der Geibelgasse. Die sonnige Wohnung besteht in Ebene 1 aus einem Vorraum, separate Toilette, offene Wohnküche, 2 Schlafzimmern, und Badezimmer,. Auf Ebene 2 gelangt man über eine Holztreppe in den oberen
Mehr lesen
Objekt ID: 2236981
Preis: € 759.000
Nutzfläche: 104 m2
Gesamtfläche: 0 m2
Ziimmer insgesamt: 3
Schlafzimmer: 3
Badezimmer: 1
Betriebskosten €: 272.84
Nutzungsart: Wohnen
HWB: 101,30 kWh/(m²*a)
HWB Klasse: C
FGEE: 1.59
E-Ausweis Gültig Bis:: 02.10.2032
Energieausweis Art: Bedarf
Balkon/Terrassen - Fläche: 8
Beziehbar: sofort
Etage: 1. DG / 4. Liftstock
WC: 1
Neubau
Einbauküche
WG-geeignet
Personenaufzug
Gas
Parkett
Badewanne
Fußbodenheizung
offene Küche
Abstellraum
Offene Küche
Klimaanlage
vollerschlossen
Ähnliche Objekte
ERSTBEZUG ! Exklusives Wohnprojekt in histor...
€ 490.000
2
Schlafzimmer
1
Badezimmer
57 m2
Größe
November 16, 2025
Lichtdurchflutete 2-Zimmer-Altbauwohnung mit...
€ 299.990
2
Schlafzimmer
1
Badezimmer
50 m2
Größe
November 15, 2025
Top sanierte Altbauperle – Helle 1-Zimmer-Wo...
€ 179.490
1
Schlafzimmer
1
Badezimmer
41 m2
Größe
November 15, 2025






