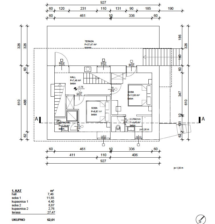
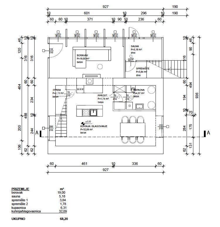
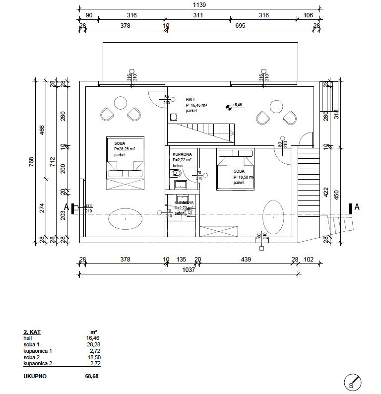
Objektbeschreibung
Ein Haus zum Verkauf in ruhiger Lage am Rande einer Grünzone. Das Haus mit einer Fläche von 226,19 m2 besteht aus einem Erdgeschoss und zwei Etagen. Im Erdgeschoss gibt es eine Küche mit Esszimmer (32,09 m2), ein großes Wohnzimmer von 19 m2, ein Badezimmer und eine Sauna. Im ersten Stock
Mehr lesen
Objekt ID: 2238070
Preis: € 599.000
Nutzfläche: 0 m2
Gesamtfläche: 700 m2
Ziimmer insgesamt: 5
Schlafzimmer: 5
Badezimmer: 5
Nutzungsart: Wohnen
Provisionspflichtig: ja
Provision: 3% des Kaufpreises zzgl. 20% USt.
WC: 5





