Objektbeschreibung
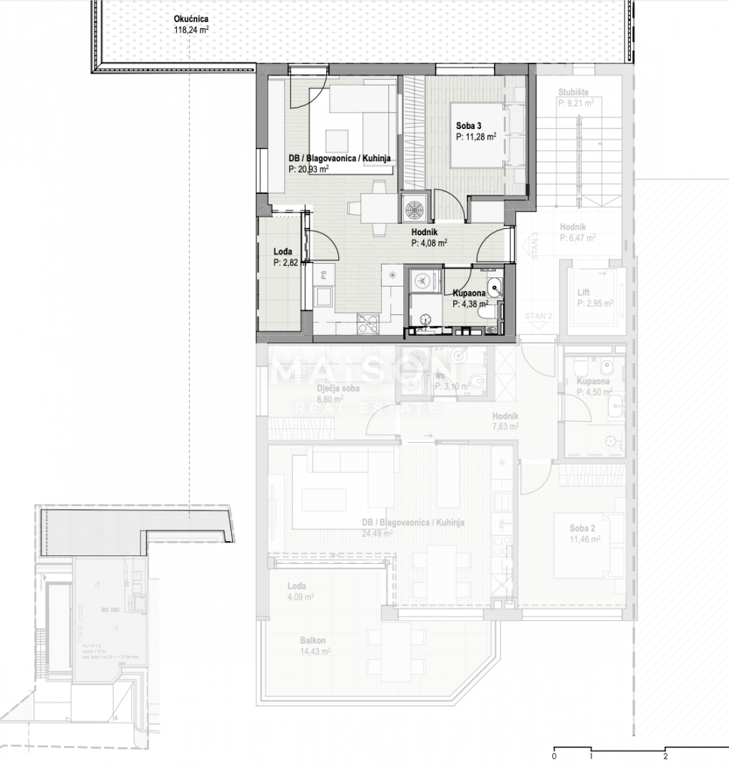
Einzimmerwohnung in einem luxuriösen Neubau mit Loggia, Abstellraum und Parkplatz
In der prestigeträchtigen Lage Bivio in Rijeka, nur wenige Gehminuten vom Meer entfernt, befindet sich diese moderne Einzimmerwohnung im ersten Stock eines hochwertigen Neubaus. Sie ist ideal für alle, die ein praktisches, elegantes und energieeffizientes Zuhause in einer außergewöhnlichen
Mehr lesen
Objekt ID: 2248027
Preis: € 360.000
Nutzfläche: 0 m2
Gesamtfläche: 0 m2
Ziimmer insgesamt: 2
Schlafzimmer: 2
Badezimmer: 1
Nutzungsart: Wohnen
Provisionspflichtig: ja








