Erweiterte Suche
Suchagent aktivieren
Exklusive Anzeigen

Grundstück Kaštelir, Kaštelir-Labinci, 585,60m2

€ 130.000,00

,

zu Favoriten hinzufügen
teilen
Suchergebnisse

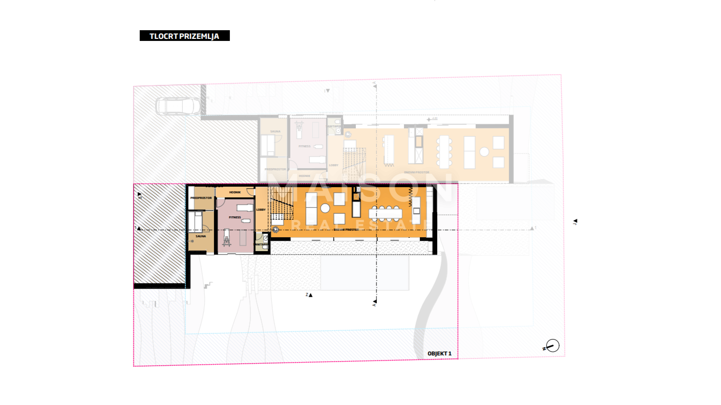
Objektbeschreibung

ID CODE: 1138

Bezirk:
PLZ: 52464
Land: Croatia
Objekt ID: 2248132
Preis: € 130.000
Nutzfläche: 0 m2
Gesamtfläche: 0 m2
Ziimmer insgesamt: 0
Schlafzimmer: 0
Badezimmer: 0
Nutzungsart: Anlage
Provisionspflichtig: ja

Vergleichen