Objektbeschreibung
ŠIBENIK, ROGOZNICA – Moderne Villa mit Pool, nur 60 m vom Meer entfernt
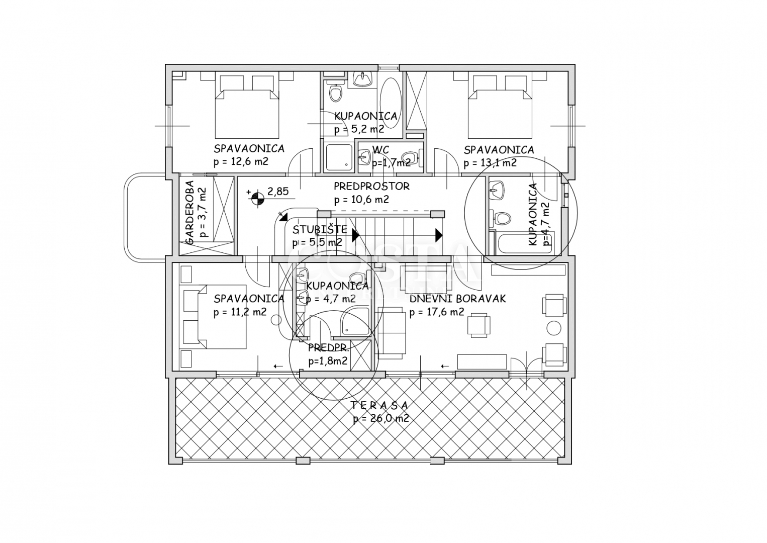
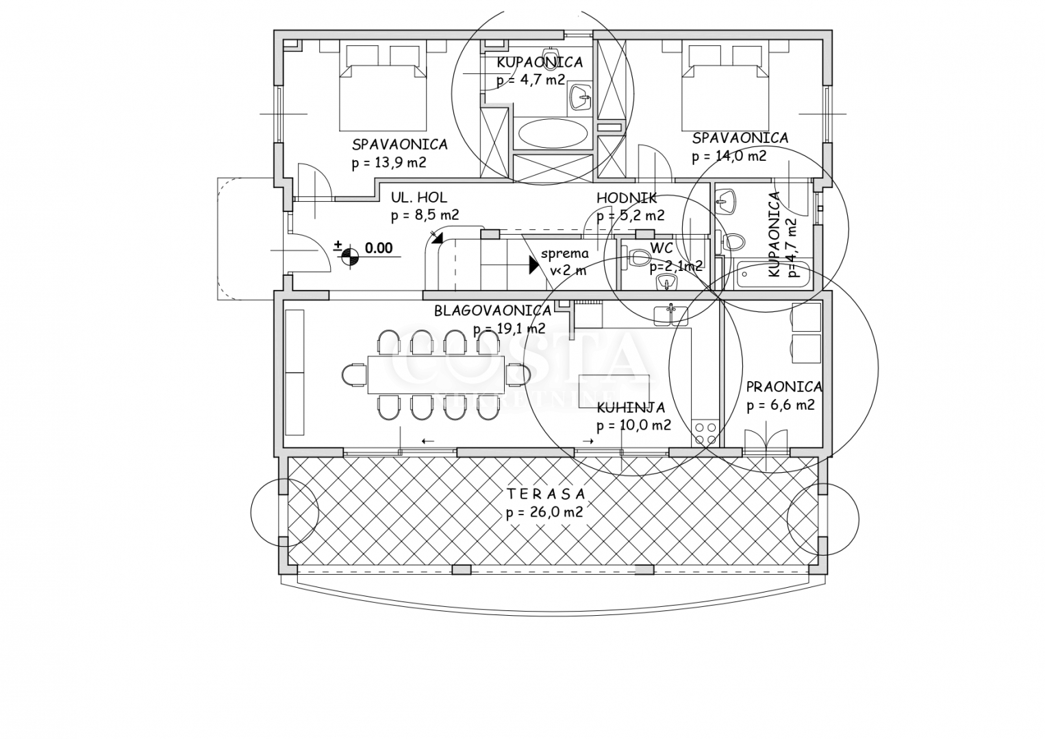
In Rogoznica bei Šibenik steht eine luxuriöse Villa mit Pool zum Verkauf. Das Anwesen bietet eine Wohnfläche von 328 m² auf einem 449 m² großen Grundstück. Es erstreckt sich über ein Erdgeschoss und zwei Obergeschosse. Im Erdgeschoss
Mehr lesen
Objekt ID: 2249642
Preis: € 1.200.000
Nutzfläche: 0 m2
Gesamtfläche: 449 m2
Ziimmer insgesamt: 7
Schlafzimmer: 7
Badezimmer: 3
Nutzungsart: Wohnen
Provisionspflichtig: ja
WC: 1
Ähnliche Objekte
ROGOZNICA: NEUGEBAUTES VILLA MIT WUNDERSCHÖN...
€ 1.300.000
5
Schlafzimmer
5
Badezimmer
Dezember 1, 2025





