Erweiterte Suche
Suchagent aktivieren
Exklusive Anzeigen

PROVISIONSFREI – THE WATERFRONT CURIOSITY – ABSOLUTE SELTENHEIT – EIGENGRUND BEI DER ALTEN DONAU!

€ 455.000,00

,

66.293 Zimmer
zu Favoriten hinzufügen
teilen
Suchergebnisse

Objektbeschreibung

PROVISIONSFREI – THE WATERFRONT CURIOSITY – ABSOLUTE SELTENHEIT – EIGENGRUND BEI DER ALTEN DONAU!
 

Es ist an der Zeit, Wohnqualität neu zu definieren, Maßstäbe in Sachen Lebensqualität, Architektur und Service zu setzen. Überragende Architektur, die schon auf den ersten Blick fasziniert und aufgeteilt auf vier Gebäudekörpern genau das hält, was
Mehr lesen

Ort:
Bezirk:
Bundesland:
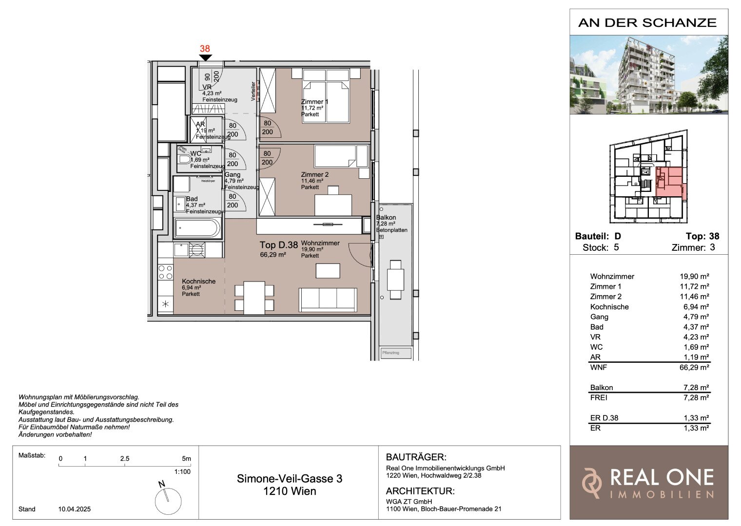
PLZ: 1210
Land: Österreich
Objekt ID: 2252186
Preis: € 455.000
Nutzfläche: 66 m2
Gesamtfläche: 74 m2
Ziimmer insgesamt: 3
Schlafzimmer: 3
Badezimmer: 1
Nutzungsart: Wohnen
Provisionspflichtig: nein
HWB: 21,90 kWh/(m²*a)
HWB Klasse: B
FGEE: 0.78
E-Ausweis Gültig Bis:: 03.09.2030
Energieausweis Art: Bedarf
Anzahl Balkone: 1
Balkon/Terrassen - Fläche: 7
Beziehbar: 2026
Etage: 5. Etage / 5. Liftstock
WC: 1
Abstellräume: 1
Balkon
barrierefrei
Neubau
Einbauküche
Personenaufzug
Badewanne
Fußbodenheizung
Kabel/Sat-TV
Fahrradraum
offene Küche
Abstellraum
Offene Küche
Klimaanlage
Estrich
Fernwärme
Tiefgarage

Ähnliche Objekte

vergleichen
31pIczdcVMHK7yXS93zeLr 1

Balkonwohnung im Neubauprojekt

€ 650.000
2
Schlafzimmer
1
Badezimmer
58 m2
Größe
April 20, 2026
vergleichen
31pIczdcVMHK7yXS93zeLr

Balkonwohnung im Neubauprojekt

€ 650.000
2
Schlafzimmer
1
Badezimmer
58 m2
Größe
April 20, 2026
vergleichen
2iqDGooNgN3GTcU3wujDCj

Erstbezug I Gartenwohnung I 4 Zimmer

€ 1.260.000
4
Schlafzimmer
2
Badezimmer
113 m2
Größe
April 20, 2026

Vergleichen