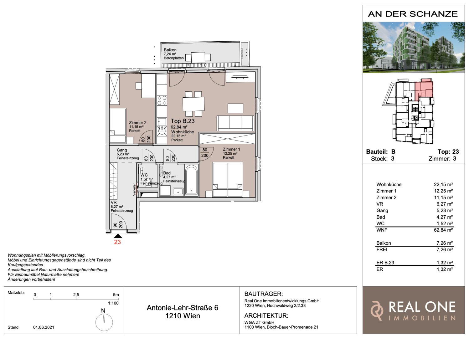
Objektbeschreibung
PROVISIONSFREI – THE WATERFRONT CURIOSITY – ABSOLUTE SELTENHEIT – EIGENGRUND BEI DER ALTEN DONAU!
Es ist an der Zeit, Wohnqualität neu zu definieren, Maßstäbe in Sachen Lebensqualität, Architektur und Service zu setzen. Überragende Architektur, die schon auf den ersten Blick fasziniert und aufgeteilt auf vier Gebäudekörpern genau das hält, was
Mehr lesen
Objekt ID: 2252375
Preis: € 445.000
Nutzfläche: 63 m2
Gesamtfläche: 70 m2
Ziimmer insgesamt: 3
Schlafzimmer: 3
Badezimmer: 1
Nutzungsart: Wohnen
Provisionspflichtig: nein
HWB: 21,90 kWh/(m²*a)
HWB Klasse: B
FGEE: 0.78
E-Ausweis Gültig Bis:: 03.09.2030
Energieausweis Art: Bedarf
Anzahl Balkone: 1
Balkon/Terrassen - Fläche: 7
Beziehbar: 2026
Etage: 3. Etage / 3. Liftstock
WC: 1
Balkon
barrierefrei
Neubau
WG-geeignet
Personenaufzug
Parkett
Badewanne
Kabel/Sat-TV
Fahrradraum
Zentralheizung
offene Küche
Offene Küche
Klimaanlage
Fernwärme
schlüsselfertig mit Keller
Tiefgarage
Flachdach
Fertigteile
Fertigteil-Bauweise
Ähnliche Objekte
Traumhafte Terrassenwohnung im Neubauprojekt...
€ 965.000
3
Schlafzimmer
1
Badezimmer
76 m2
Größe
April 20, 2026
Schloßpark Hacking I 2 Zimmer I Gartenwohnun...
€ 885.000
2
Schlafzimmer
1
Badezimmer
67 m2
Größe
April 20, 2026
![Traumhafte Terrassenwohnung im Neubauprojekt [A] 6gsoYTiuBpfTK5DqHEhuup](https://gesucht-gefunden.at/wp-content/uploadstorage/2026/04/6gsoYTiuBpfTK5DqHEhuup-525x350.jpg)

















