Objektbeschreibung
PROVISIONSFREIE ANLEGERWOHNUNGEN – THE WATERFRONT CURIOSITY – EIGENGRUND BEI DER ALTEN DONAU!
Es ist an der Zeit, Wohnqualität neu zu definieren, Maßstäbe in Sachen Lebensqualität, Architektur und Service zu setzen. Überragende Architektur, die schon auf den ersten Blick fasziniert und aufgeteilt auf vier Gebäudekörpern genau das hält, was sie von
Mehr lesen
Objekt ID: 2252545
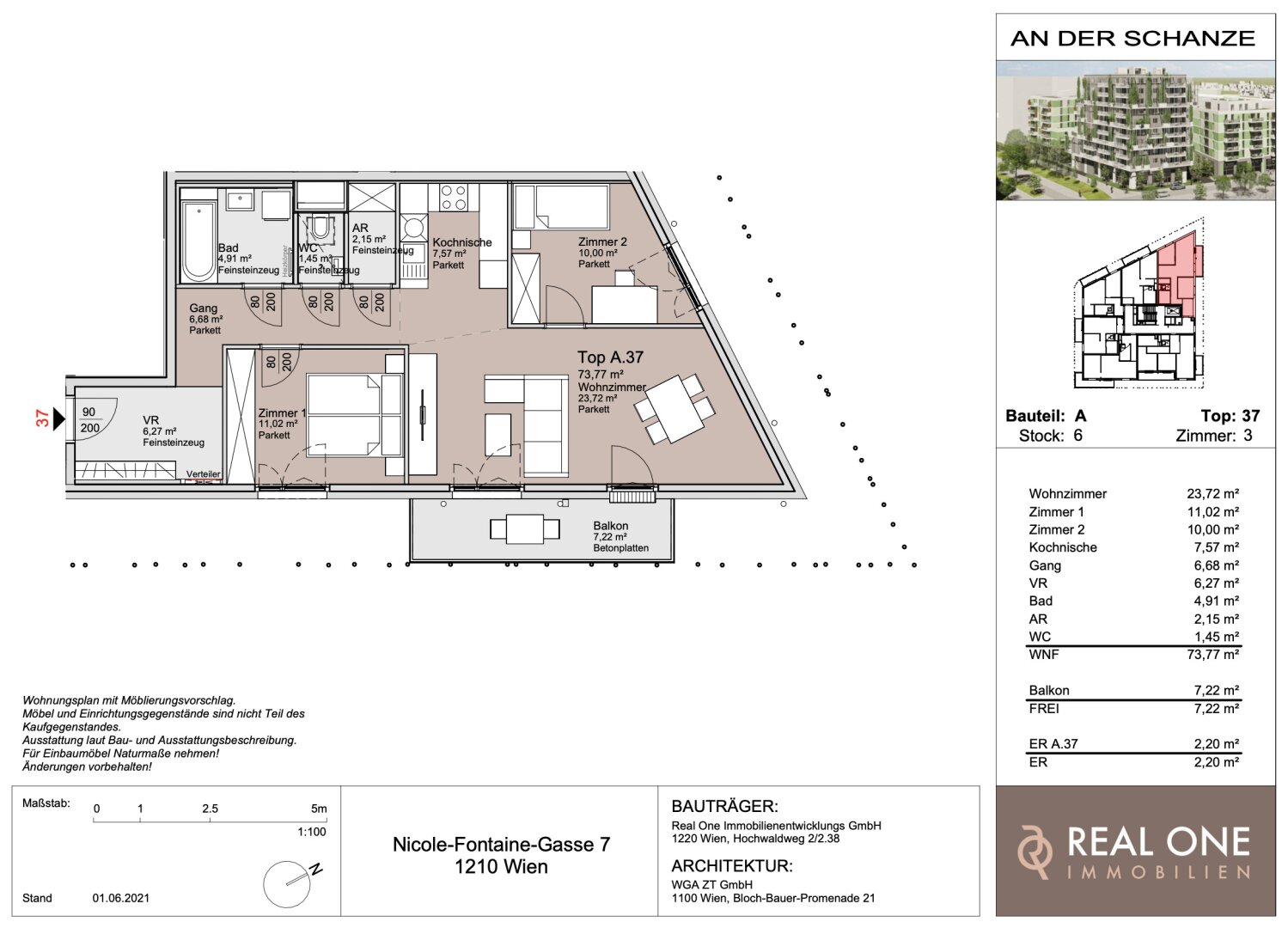
Preis: € 449.000
Nutzfläche: 74 m2
Gesamtfläche: 81 m2
Ziimmer insgesamt: 3
Schlafzimmer: 3
Badezimmer: 1
Nutzungsart: Wohnen
Provisionspflichtig: nein
HWB: 21,90 kWh/(m²*a)
HWB Klasse: B
FGEE: 0.78
E-Ausweis Gültig Bis:: 03.09.2030
Energieausweis Art: Bedarf
Anzahl Balkone: 1
Balkon/Terrassen - Fläche: 7
Beziehbar: 2026
Etage: 6. Etage / 6. Liftstock
WC: 1
Abstellräume: 1
Balkon
barrierefrei
Neubau
Einbauküche
Personenaufzug
Badewanne
Fußbodenheizung
Kabel/Sat-TV
Fahrradraum
offene Küche
Abstellraum
Offene Küche
Klimaanlage
Estrich
Fernwärme
Tiefgarage
Ähnliche Objekte
Großzügige Gartenwohnung mit sonniger Terras...
€ 598.700
3
Schlafzimmer
2
Badezimmer
91 m2
Größe
Mai 3, 2026
BEIM DONAUUFER: Gefragte 2-Zimmer-Wohnung im...
€ 269.000
2
Schlafzimmer
1
Badezimmer
44 m2
Größe
Mai 3, 2026
Hofseitige 2-Zimmer-Balkonwohnung in begehrt...
€ 295.900
2
Schlafzimmer
1
Badezimmer
48 m2
Größe
Mai 3, 2026


















