Erweiterte Suche
Andere Eigenschaften
Suchagent aktivieren
Exklusive Anzeigen

3-ZIMMER-FERIENWOHNUNG MIT BALKON UND TG-STELLPLATZ

€ 429.000,00

,

55.933 Zimmer
zu Favoriten hinzufügen
teilen
Suchergebnisse

Objektbeschreibung

LAGE

* sonnige Wohnlage im Gemeindegebiet von Kirchberg in Tirol
* Ortszentrum Kirchberg, sowie Nahversorger und Restaurants in geringer Entfernung
* Die Talstationen des Skigebietes Kitzbühel (Fleckalmbahn bzw. Maierlbahn) sind in wenigen Autominuten erreichbar

 

WOHNHAUS

* großzügige und gepflegte Wohnanlage, bestehend aus mehreren Baukörpern, errichtet lt.
Mehr lesen

Bezirk:
Bundesland:
PLZ: 6365
Land: Österreich
Objekt ID: 2266107
Preis: € 429.000
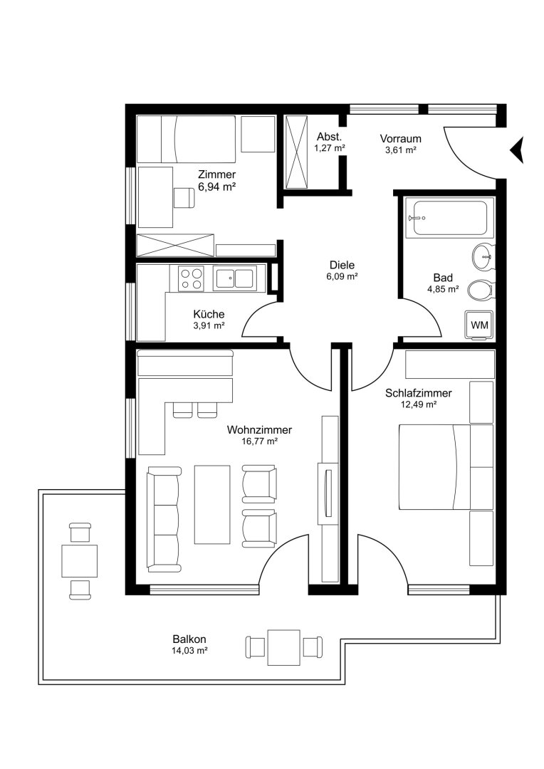
Nutzfläche: 56 m2
Gesamtfläche: 0 m2
Ziimmer insgesamt: 3
Schlafzimmer: 3
Badezimmer: 1
Miete/m2 €: 7595.61
Nutzungsart: Wohnen
Provisionspflichtig: ja
Provision: 3% des Kaufpreises zzgl. 20% USt.
HWB: 52 kWh/(m²*a)
HWB Klasse: C
FGEE: 0.95
E-Ausweis Gültig Bis:: 01.03.2032
Energieausweis Art: Bedarf
Anzahl Balkone: 1
Balkon/Terrassen - Fläche: 14
Beziehbar: nach Vereinbarung
Etage: 1. Obergeschoss
Abstellräume: 1
Balkon
Personenaufzug
Badewanne
Zentralheizung
Teppich
als Ferienimmobilie nutzbar

Ähnliche Objekte

vergleichen
1qWk8equUbBQeTrM37yZkW 1

3-ZIMMER-FERIENWOHNUNG MIT BALKON UND TG-STE...

€ 429.000
3
Schlafzimmer
1
Badezimmer
56 m2
Größe
Dezember 4, 2025

Orasche GmbH
Immobilien Orasche

Kontaktaufnahme









    • Preisinformation
      Objektpreis429.000,00 €

    Vergleichen