Objektbeschreibung
WER NACH EINER VON 45 EIGENTUMSWOHNUNGEN MIT ERSTBEZUG AB 2026 SUCHT, IST HIER GENAU RICHTIG!
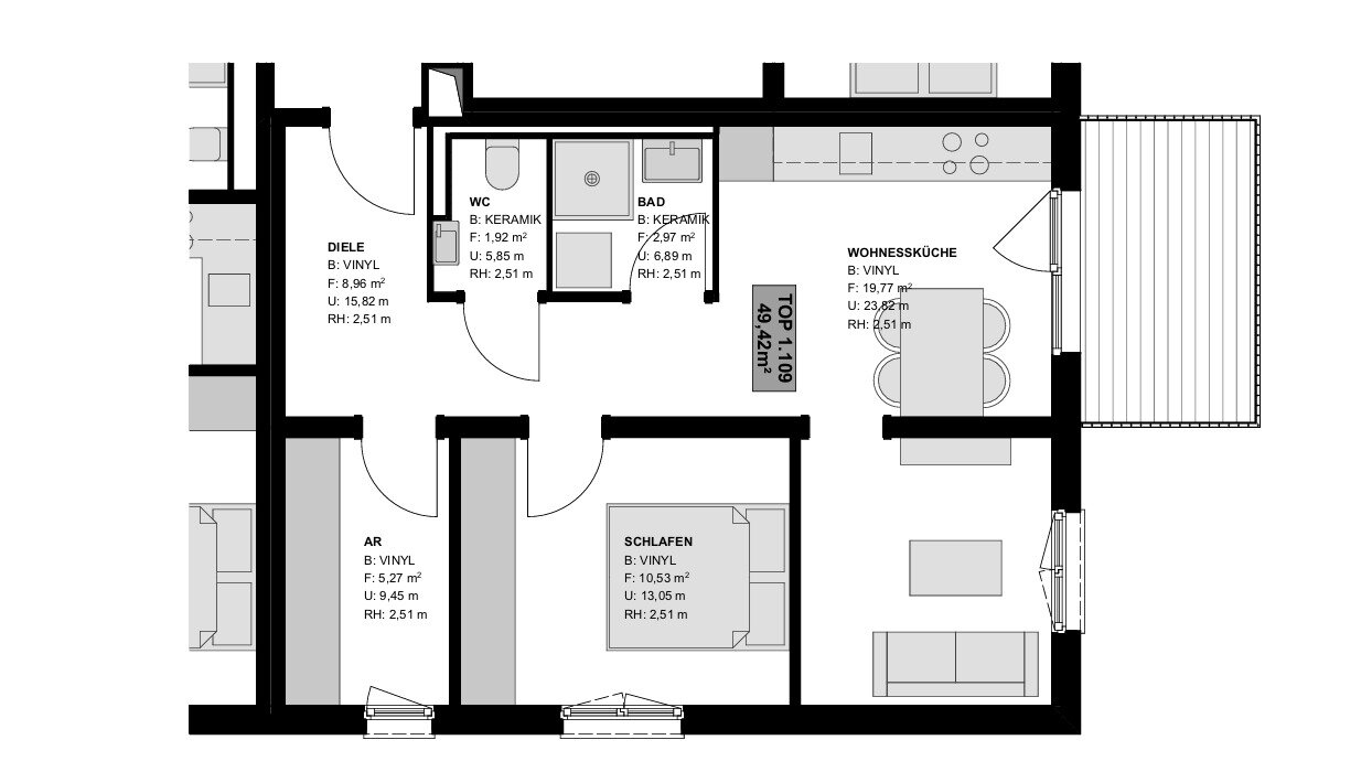
Auf ca. 49,5 m² Wohnfläche finden Sie:
* Einen einladenden Eingangsbereich
* Ein Schlafzimmer
* Ein Abstellraum
* Ein vollausgestattetes Badezimmer mit Dusche, Waschbecken und Waschmaschinenanschluss
* Eine nicht ausgestattete
Mehr lesen
Dokumente
Adresse: Stiftsteichstraße
Ort: Schlierbach
Bezirk: 4553
Bundesland: Oberösterreich
PLZ: 4553
Land: Österreich
Objekt ID: 2266353
Preis: € 210.000
Nutzfläche: 49 m2
Gesamtfläche: 0 m2
Ziimmer insgesamt: 2
Schlafzimmer: 2
Badezimmer: 1
Miete/m2 €: 4250
Nutzungsart: Wohnen
Provisionspflichtig: ja
Provision: 8.352,00 € inkl. 20% USt.
HWB: 27 kWh/(m²*a)
HWB Klasse: B
FGEE: 0.71
E-Ausweis Gültig Bis:: 24.02.2032
Energieausweis Art: Bedarf
Balkon/Terrassen - Fläche: 6
Beziehbar: Frühling 2026
Etage: 1. Etage
WC: 1
Abstellräume: 1
barrierefrei
Neubau
Personenaufzug
Dusche
Fußbodenheizung
Kabel/Sat-TV
Fahrradraum
offene Küche
Abstellraum
Offene Küche
rollstuhlgerecht
Freiplatz
Luft-Wärmepumpe
Massiv
Massivbauweise
vollerschlossen
Gartennutzung
seniorengerecht
Kabelkanäle
Holz(rahmen)
Holzbauweise
Satteldach
Fertigparkett
Ähnliche Objekte
*NEUBAU* – Nachhaltige Eigentumswohnun...
€ 201.600
2
Schlafzimmer
1
Badezimmer
45 m2
Größe
April 19, 2026
*NEUBAU* – Nachhaltige Eigentumswohnun...
€ 197.900
2
Schlafzimmer
1
Badezimmer
45 m2
Größe
Februar 15, 2026
*NEUBAU* – Nachhaltige Eigentumswohnun...
€ 281.600
3
Schlafzimmer
1
Badezimmer
64 m2
Größe
Februar 15, 2026


















