Objektbeschreibung
Zum Verkauf steht ein vollständig ausgestatteter Gasthof in traumhafter Lage auf der Hochrindl, einem beliebten Erholungs- und Skigebiet in den Nockbergen, Kärnten. Das Objekt bietet eine einzigartige Gelegenheit für Gastronomen und Investoren, einen sofort betriebsbereiten Beherbergungs- und Gastronomiebetrieb zu übernehmen oder das Anwesen in ein luxuriöses Chalet umzuwandeln.
Highlights des
Mehr lesen
Dokumente
Objekt ID: 2269094
Preis: € 790.000
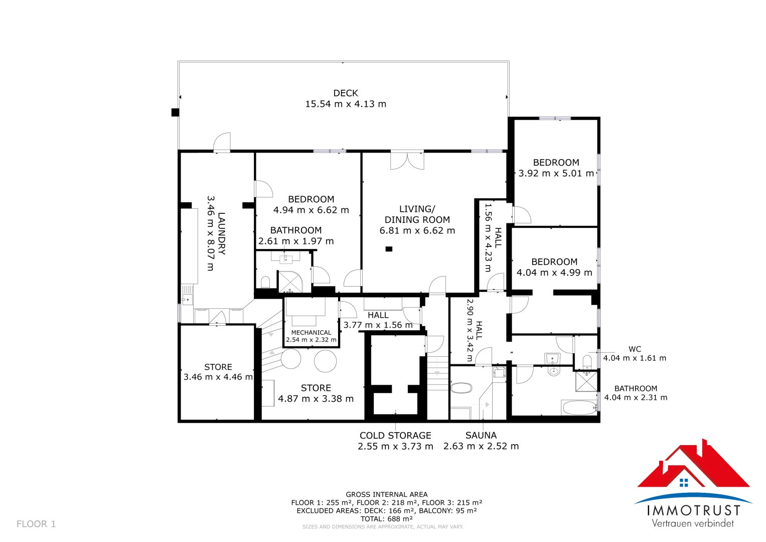
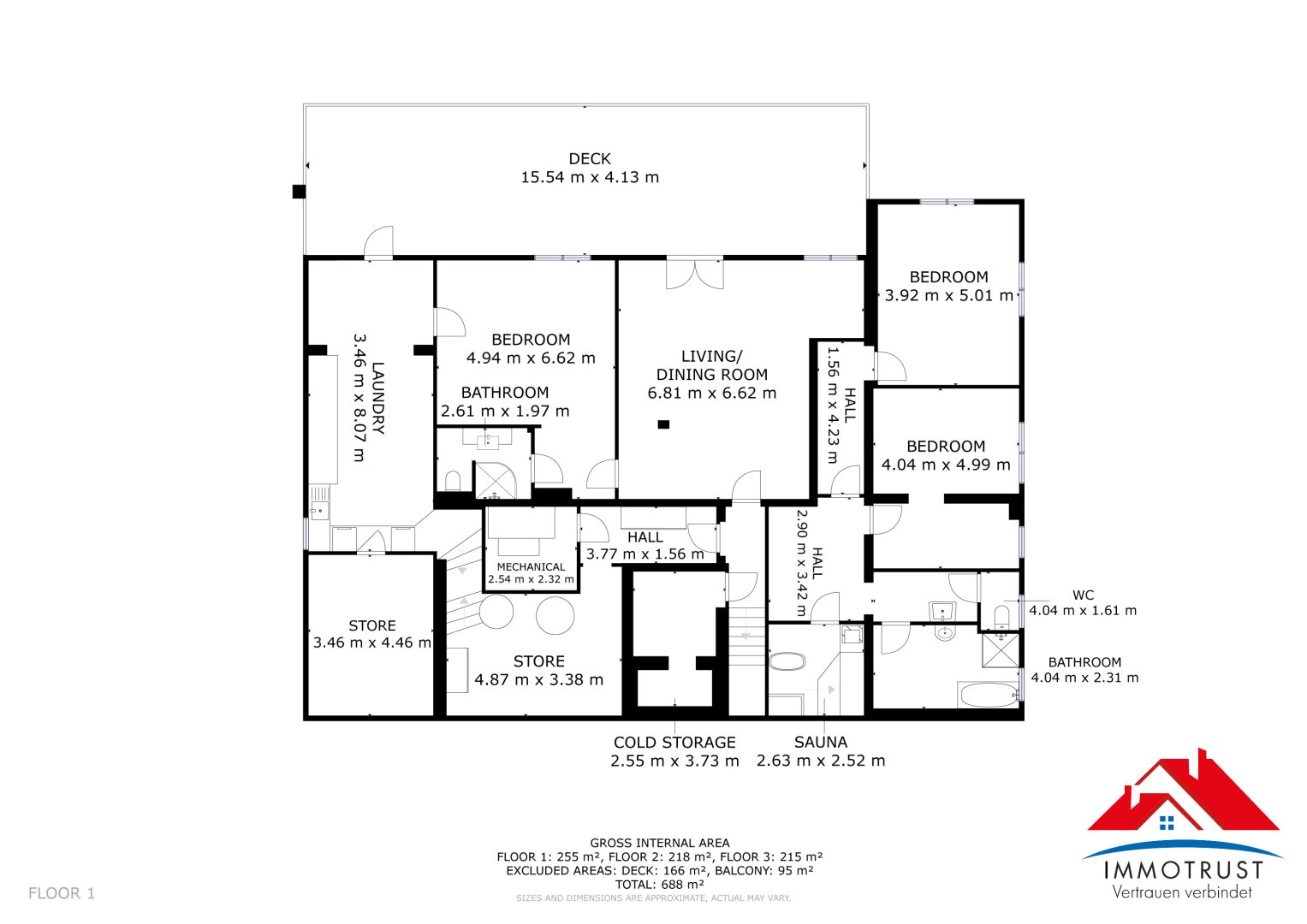
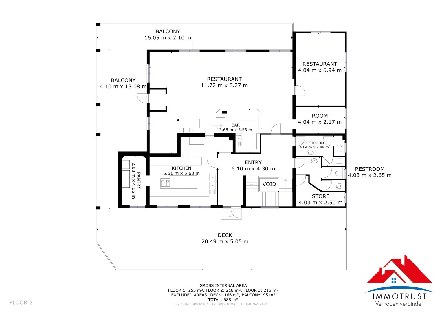
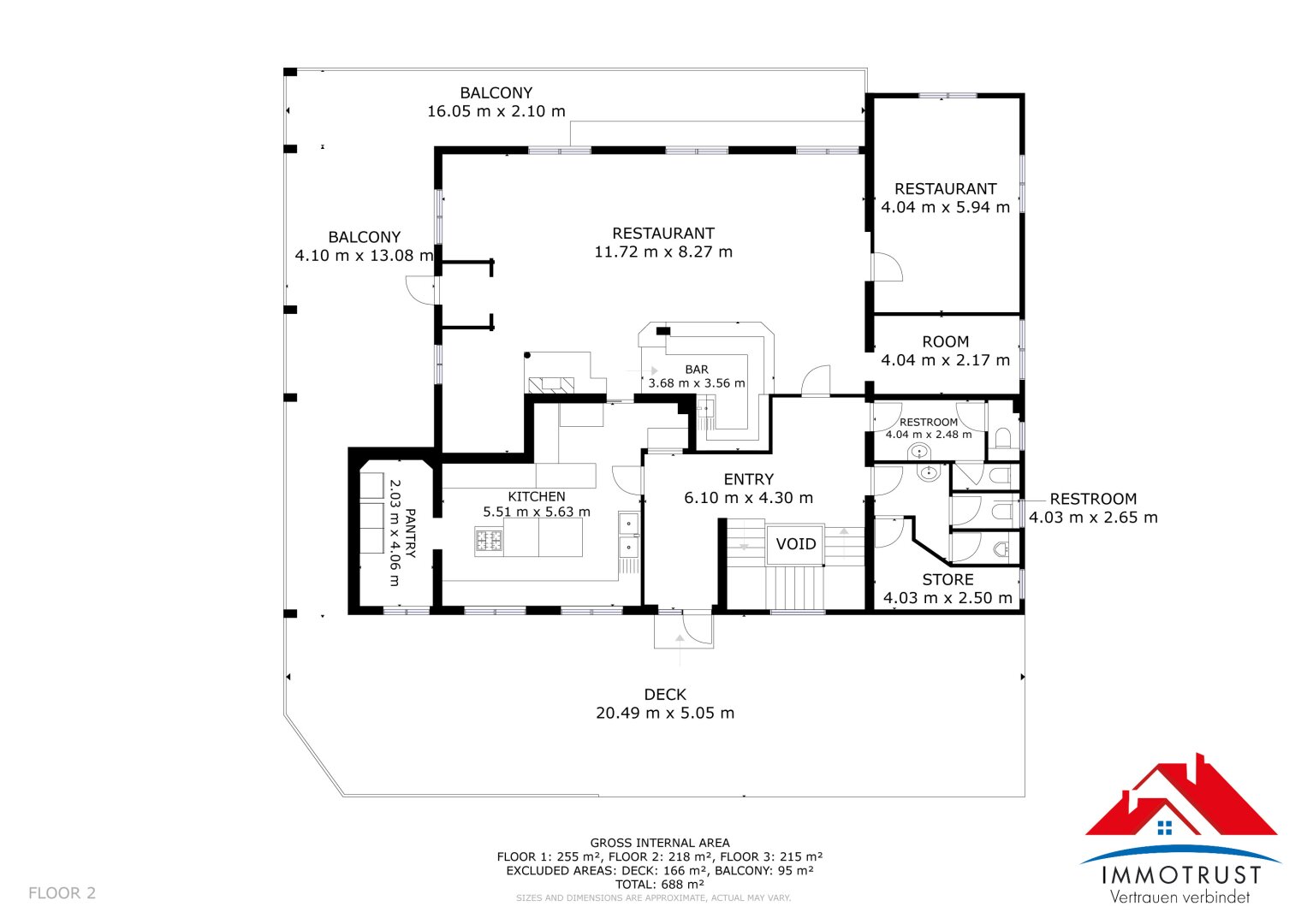
Nutzfläche: 688 m2
Gesamtfläche: 688 m2
Ziimmer insgesamt: 11
Schlafzimmer: 11
Badezimmer: 0
Nutzungsart: Anlage
Provisionspflichtig: ja
Provision: 3% des Kaufpreises zzgl. 20% USt.
HWB: 149 kWh/(m²*a)
HWB Klasse: D
E-Ausweis Gültig Bis:: 30.09.2025
Energieausweis Art: Bedarf
Anzahl Balkone: 7
Balkon/Terrassen - Fläche: 261
Beziehbar: nach Vereinbarung
Balkon
vollmöbliert
WG-geeignet
Gäste-WC
Altbau
Bad mit Fenster
Kabel/Sat-TV
Zentralheizung
Abstellraum
Carport
Massiv
Massivbauweise
vollerschlossen
Dielen
Sauna
Holz-Hackschnitzel
als Ferienimmobilie nutzbar
Holz(rahmen)
Holzbauweise
Satteldach
Wellnessbereich















