Objektbeschreibung
„DONAU PERLE“ – IHR WOHNTRAUM MIT MEHRWERT
Willkommen in Floridsdorf – hier entsteht ein Zuhause, das weit mehr ist als nur vier Wände. Ein Ort zum Wohlfühlen, Durchatmen und Ankommen. Dieses innovative Neubauprojekt vereint modernen urbanen Lifestyle mit der Ruhe und Schönheit der Natur – eine außergewöhnliche Kombination, die Wohnqualität
Mehr lesen
Objekt ID: 2273507
Preis: € 889.000
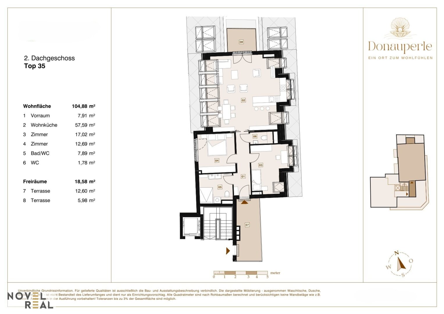
Nutzfläche: 105 m2
Gesamtfläche: 105 m2
Ziimmer insgesamt: 3
Schlafzimmer: 3
Badezimmer: 1
Nutzungsart: Anlage
Provisionspflichtig: ja
Provision: 3% des Kaufpreises zzgl. 20% USt.
HWB: 27,80 kWh/(m²*a)
HWB Klasse: B
Energieausweis Art: Bedarf
Anzahl Balkone: 2
Balkon/Terrassen - Fläche: 18
Etage: 2. DG
WC: 2
Balkon
Neubau
Personenaufzug
Gäste-WC
Parkett
Bad mit Fenster
Fußbodenheizung
Kabel/Sat-TV
Fahrradraum
offene Küche
Offene Küche
Klimaanlage
seniorengerecht
Tiefgarage
Erdwärme






