Objektbeschreibung
Urbanes Wohnen mit Stil – Ihr neues Zuhause im Grünen!
Inmitten des dynamischen 11. Bezirks von Wien entsteht ein Wohnprojekt, das urbanen Lebensstil mit zeitgemäßem Komfort vereint. Es erwarten Sie moderne 1- bis 3-Zimmer-Wohnungen – jede mit eigener Freifläche – perfekt geeignet für Singles, Paare und kleine Familien. Bezugsfertig im
Mehr lesen
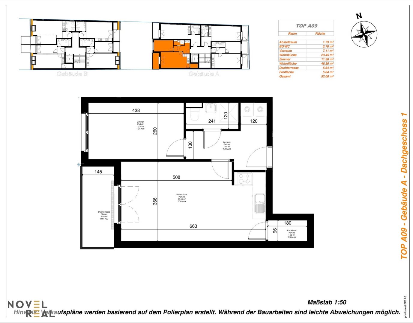
Objekt ID: 2273564
Preis: € 253.000
Nutzfläche: 46 m2
Gesamtfläche: 46 m2
Ziimmer insgesamt: 2
Schlafzimmer: 2
Badezimmer: 1
Nutzungsart: Anlage
Provisionspflichtig: ja
Provision: 3% des Kaufpreises zzgl. 20% USt.
HWB: 53,40 kWh/(m²*a)
HWB Klasse: C
FGEE: 0.76
Energieausweis Art: Bedarf
Balkon/Terrassen - Fläche: 5
Beziehbar: Vorrasichtliche Fertigstellung Frühjahr 2026
Etage: 1. DG
WC: 1
Abstellräume: 1
Neubau
Personenaufzug
Parkett
Bad mit Fenster
Fußbodenheizung
Fahrradraum
offene Küche
Offene Küche
Luft-Wärmepumpe
Tiefgarage
Ähnliche Objekte
Lichtdurchflutete Dachgeschosswohnung mit gr...
€ 287.000
2
Schlafzimmer
1
Badezimmer
49 m2
Größe
Januar 18, 2026
Wohnkomfort mit Loggia – ideal für Stadtmens...
€ 244.000
2
Schlafzimmer
1
Badezimmer
46 m2
Größe
Januar 18, 2026
Sonnige Aussichten – Wohnen mit Freifläche
€ 194.000
1
Schlafzimmer
1
Badezimmer
37 m2
Größe
Januar 18, 2026






