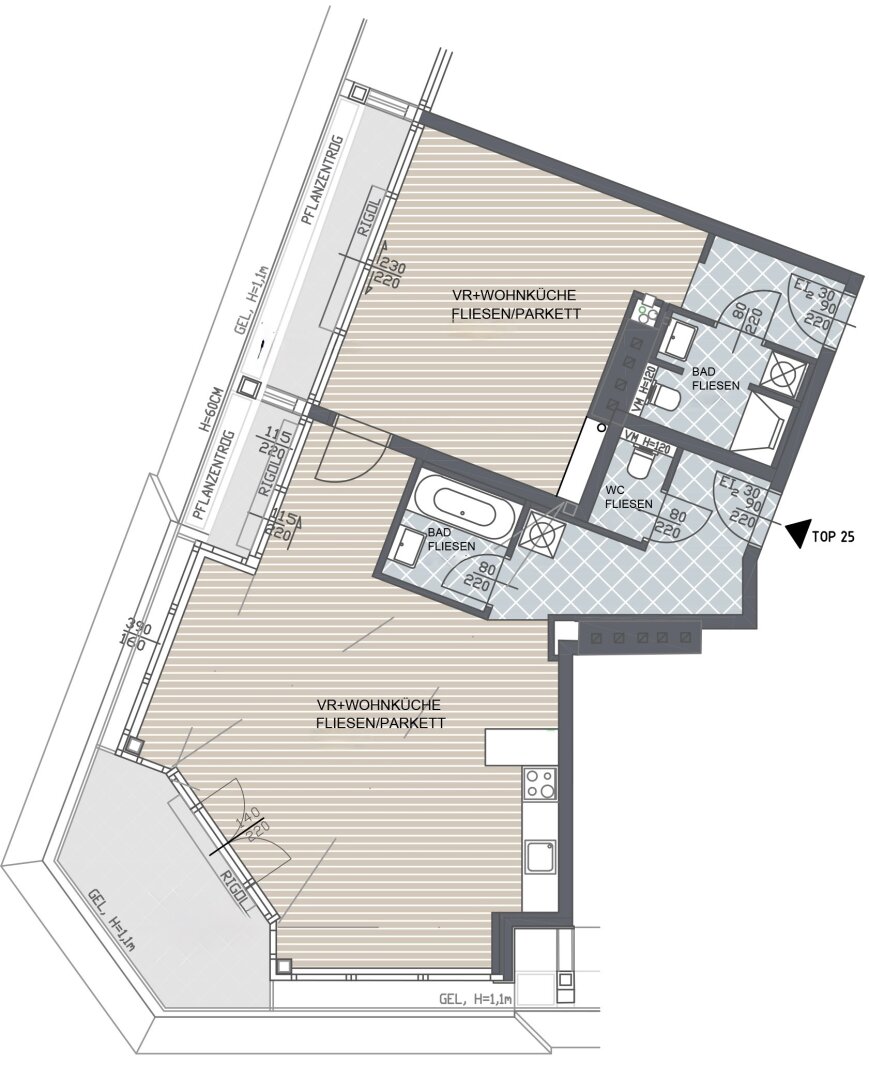
Objektbeschreibung
HELLE WOHNUNG MIT TERRASSE & LOGGIA – WOHNEN MIT AUSBLICK IM HERZEN WIENS
Diese charmante Eigentumswohnung überzeugt durch ihre außergewöhnliche Helligkeit.Große Fensterfronten durchfluten die Wohnräume mit Tageslicht und schaffen ein offenes, freundliches Wohngefühl.
Highlights der Wohnung sind die Terrasse und die separate Loggia – perfekt, um Sonne zu genießen, den Tag ausklingen zu lassen oder Gäste
Mehr lesen
Objekt ID: 2273672
Preis: € 489.000
Nutzfläche: 83 m2
Gesamtfläche: 0 m2
Ziimmer insgesamt: 2
Schlafzimmer: 2
Badezimmer: 2
Nutzungsart: Wohnen
Provisionspflichtig: ja
Provision: 3% des Kaufpreises zzgl. 20% USt.
HWB: 38,20 kWh/(m²*a)
HWB Klasse: A
FGEE: 0.8
E-Ausweis Gültig Bis:: 15.02.2026
Energieausweis Art: Bedarf
Balkon/Terrassen - Fläche: 12
Beziehbar: sofort
WC: 2
WG-geeignet
Personenaufzug
Gas
Parkett
Badewanne
Fußbodenheizung
Kabel/Sat-TV
teilmöbliert
offene Küche
Offene Küche
Rollläden
Massiv
Massivbauweise
vollerschlossen
schlüsselfertig mit Keller
Pantry-Küche
Räume veränderbar
Flachdach
Ähnliche Objekte
220m2 Garten! Neu und provisionsfrei in der ...
€ 620.000
4
Schlafzimmer
2
Badezimmer
93 m2
Größe
April 29, 2026
Erstbezug: Exklusive 3-Zimmerwohnung in idyl...
€ 440.000
3
Schlafzimmer
1
Badezimmer
74 m2
Größe
April 29, 2026
Neu und provisionsfrei: Hirschfeld – P...
€ 315.000
2
Schlafzimmer
1
Badezimmer
53 m2
Größe
April 29, 2026











