Objektbeschreibung
Für eine noch größere Auswahl an Immobilien besuchen Sie www.akkadia.at [http://www.akkadia.at].
In einer ruhigen Seitengasse nahe der Triesterstraße entsteht ein durchdachtes Wohnprojekt mit insgesamt 16 hochwertigen Wohneinheiten sowie einem Geschäftslokal. Die Architektur gliedert sich in einen viergeschossigen Straßentrakt sowie einen dreigeschossigen Hoftrakt und vereint modernes Design mit hoher Wohnqualität.
Das Projekt
Mehr lesen
Objekt ID: 2275138
Preis: € 173.000
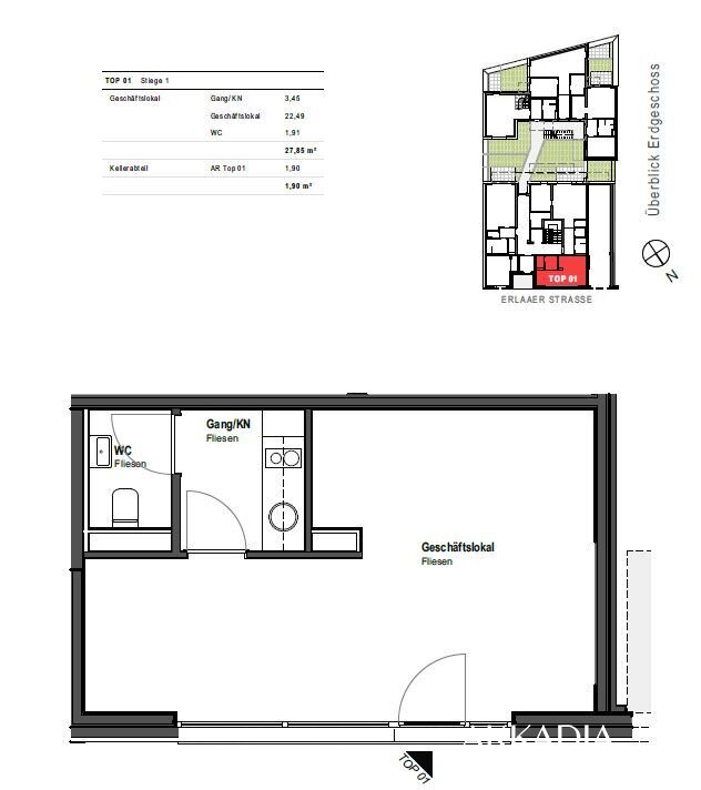
Nutzfläche: 28 m2
Gesamtfläche: 0 m2
Ziimmer insgesamt: 1
Schlafzimmer: 1
Badezimmer: 0
Nutzungsart: Gewerbe
Provisionspflichtig: ja
Provision: 3% des Kaufpreises zzgl. 20% USt.
HWB: 36,56 kWh/(m²*a)
HWB Klasse: B
FGEE: 0.85
Energieausweis Art: Bedarf
Beziehbar: 01.02.2026
Etage: EG
WC: 1
barrierefrei
Neubau
Personenaufzug
Parkett
Fußbodenheizung
Garage
Luft-Wärmepumpe
vollerschlossen







