Objektbeschreibung
Für eine noch größere Auswahl an Immobilien besuchen Sie www.akkadia.at [http://www.akkadia.at].
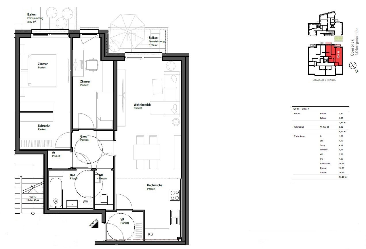
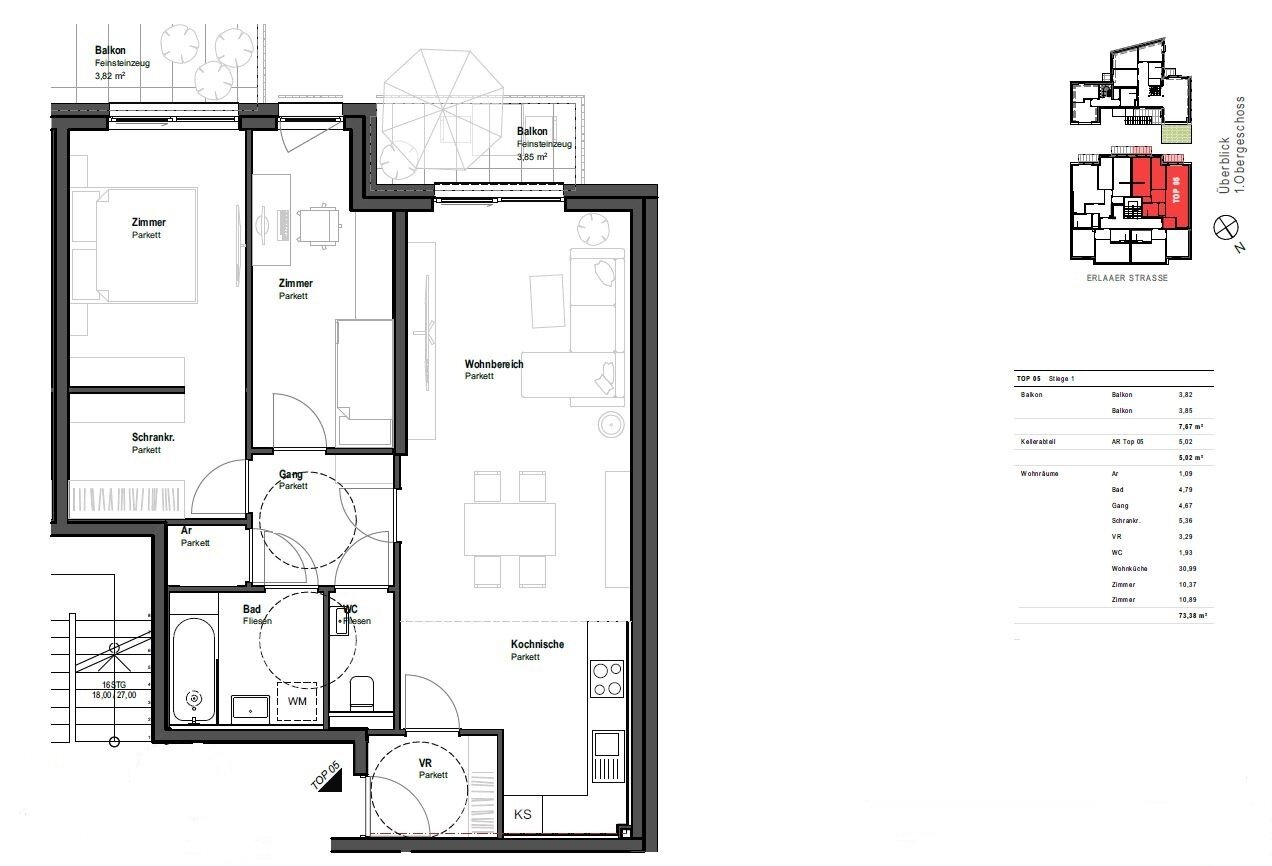
In einer ruhigen Seitengasse nahe der Triesterstraße entsteht ein durchdachtes Wohnprojekt mit insgesamt 16 hochwertigen Wohneinheiten sowie einem Geschäftslokal. Die Architektur gliedert sich in einen viergeschossigen Straßentrakt sowie einen dreigeschossigen Hoftrakt und vereint modernes Design mit hoher Wohnqualität.
Das Projekt
Mehr lesen
Objekt ID: 2276326
Preis: € 531.000
Nutzfläche: 73 m2
Gesamtfläche: 0 m2
Ziimmer insgesamt: 3
Schlafzimmer: 3
Badezimmer: 1
Nutzungsart: Gewerbe
Provisionspflichtig: ja
Provision: 3% des Kaufpreises zzgl. 20% USt.
HWB: 36,56 kWh/(m²*a)
HWB Klasse: B
FGEE: 0.85
Energieausweis Art: Bedarf
Anzahl Balkone: 2
Balkon/Terrassen - Fläche: 7
Beziehbar: 01.02.2026
Etage: 1. Etage
WC: 1
Abstellräume: 1
Balkon
barrierefrei
Neubau
Personenaufzug
Parkett
Badewanne
Fußbodenheizung
offene Küche
Offene Küche
Garage
Klimaanlage
Luft-Wärmepumpe
vollerschlossen
Ähnliche Objekte
Charmante Altbauwohnung in Hofruhelage nahe ...
€ 189.000
1
Schlafzimmer
1
Badezimmer
38 m2
Größe
April 26, 2026
Modernes Villa-Penthouse-Maisonette mit zwei...
€ 1.799.000
4
Schlafzimmer
2
Badezimmer
179 m2
Größe
April 26, 2026



















