Objektbeschreibung
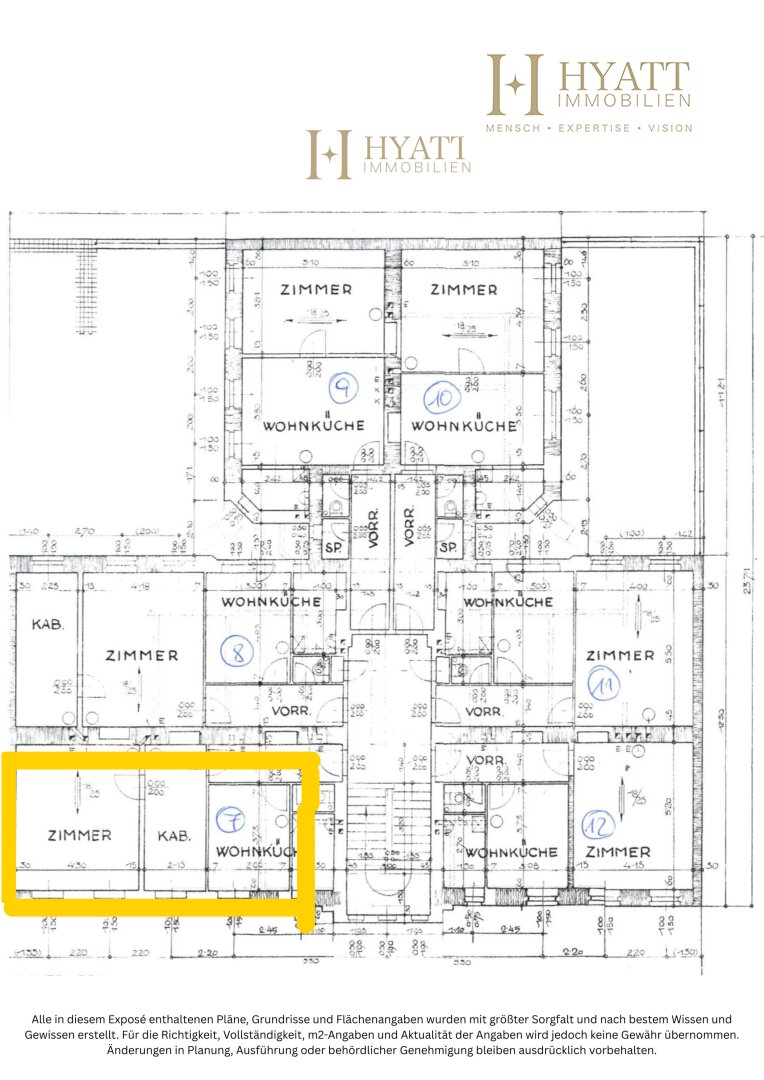
Die Wohnung befindet sich im 1. Obergeschoss eines Wohnhauses aus dem Jahr 1954 und bietet eine angenehm proportionierte Wohnfläche von ca. 63 m². Der Zustand wurde im Gutachten als gut beurteilt und entspricht der Ausstattungskategorie A, was eine zeitgemäße Badegelegenheit, ein WC im Inneren sowie eine voll funktionsfähige Heizung und
Mehr lesen
Objekt ID: 2279550
Preis: € 220.000
Nutzfläche: 63 m2
Gesamtfläche: 0 m2
Ziimmer insgesamt: 2
Schlafzimmer: 2
Badezimmer: 1
Nutzungsart: Wohnen
Provisionspflichtig: ja
Provision: 3% des Kaufpreises zzgl. 20% USt.
HWB: 85,30 kWh/(m²*a)
HWB Klasse: C
FGEE: 1.98
E-Ausweis Gültig Bis:: 10.05.2033
Energieausweis Art: Bedarf
Etage: 1. Etage
WC: 1
Neubau
Einbauküche
Gas
Dusche
Zentralheizung
Ähnliche Objekte
Charmante 1-Zimmer-Wohnung mit separater Küc...
€ 130.000
1
Schlafzimmer
1
Badezimmer
40 m2
Größe
März 4, 2026















