Objektbeschreibung
„DONAU PERLE“ – IHR WOHNTRAUM MIT MEHRWERT
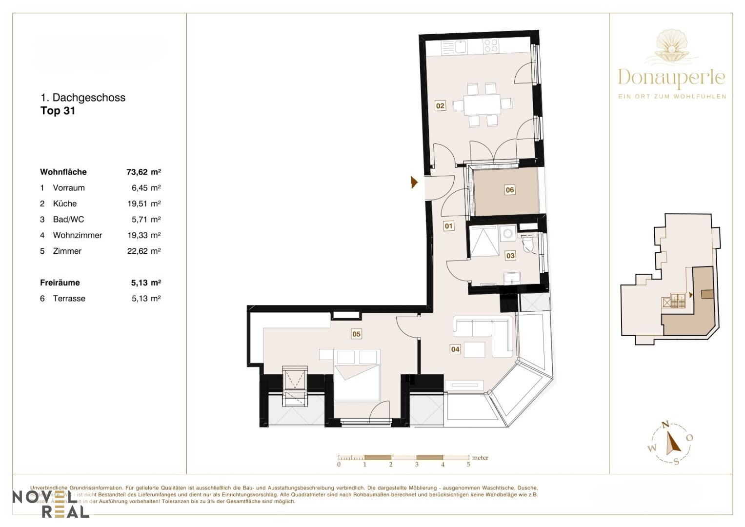
EINZIGARTIGE 2 ZIMMER MIT TERRASSE UND BLICK IN DEN PARK
Diese außergewöhnliche Wohnung im 1. Dachgeschoss (5. Etage) beeindruckt mit einem großzügigen Grundriss und einem atemberaubenden Eckzimmer mit pyramidenartiger Fensterfront.
* 2 große, lichtdurchflutete Zimmer mit bodentiefen Fensterfronten und Terrassenzugang
* geräumige Küche
Mehr lesen
Objekt ID: 2289607
Preis: € 629.000
Nutzfläche: 74 m2
Gesamtfläche: 74 m2
Ziimmer insgesamt: 2
Schlafzimmer: 2
Badezimmer: 0
Nutzungsart: Anlage
Provisionspflichtig: ja
Provision: 3% des Kaufpreises zzgl. 20% USt.
HWB: 27,80 kWh/(m²*a)
HWB Klasse: B
Energieausweis Art: Bedarf
Balkon/Terrassen - Fläche: 5
Etage: 1. DG
Neubau
Personenaufzug
Parkett
Bad mit Fenster
Fußbodenheizung
Kabel/Sat-TV
Fahrradraum
offene Küche
Offene Küche
Klimaanlage
seniorengerecht
Tiefgarage
Erdwärme
Ähnliche Objekte
3 Zimmer in Toplage I 2 Balkone I Erstbezug
€ 903.000
3
Schlafzimmer
2
Badezimmer
100 m2
Größe
Dezember 7, 2025






