Erweiterte Suche
Andere Eigenschaften
Suchagent aktivieren
Exklusive Anzeigen

Penthouse mit Wienpanorama | Alsergrund – A\

€ 1.600.000,00

,

125.053 Zimmer
zu Favoriten hinzufügen
teilen
Suchergebnisse

Objektbeschreibung

Die Liegenschaft „ModernLiving9th“
Das Zinshaus wurde umfassend kernsaniert und befindet sich in einer der gefragtesten Gegenden Wiens, im 9. Bezirk Alsergrund. Es bietet hochwertig ausgestattete Wohnungen, die den Ansprüchen eines modernen urbanen Lebens gerecht werden. Jede Wohnung ist mit zeitgemäßen Annehmlichkeiten ausgestattet und bietet ein Höchstmaß an Komfort und
Mehr lesen

Ort:
Bezirk:
Bundesland:
PLZ: 1090
Land: Österreich
Objekt ID: 2293191
Preis: € 1.600.000
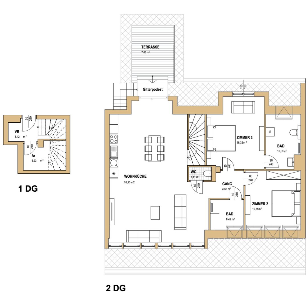
Nutzfläche: 125 m2
Gesamtfläche: 0 m2
Ziimmer insgesamt: 3
Schlafzimmer: 3
Badezimmer: 3
Nutzungsart: Anlage
Provisionspflichtig: ja
Provision: 3% des Kaufpreises zzgl. 20% USt.
HWB: 30,59 kWh/(m²*a)
HWB Klasse: B
FGEE: 0.73
E-Ausweis Gültig Bis:: 10.10.2028
Energieausweis Art: Bedarf
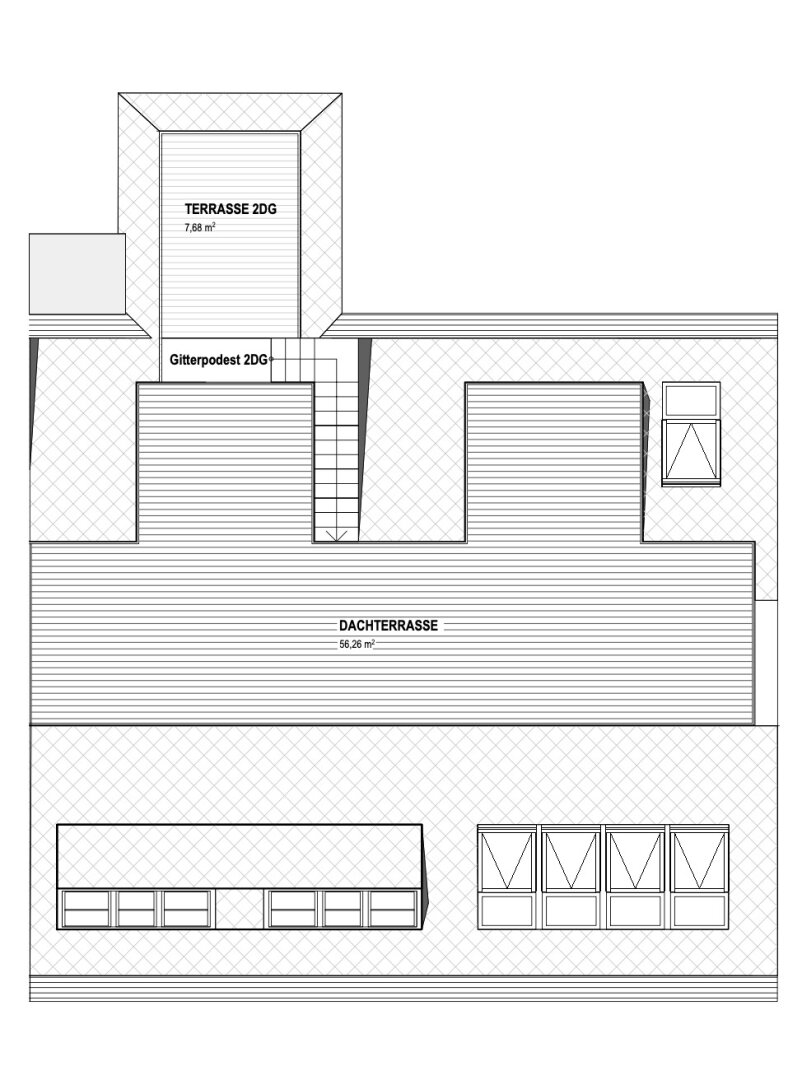
Anzahl Balkone: 1
Balkon/Terrassen - Fläche: 63
Etage: 2. DG / 1. & 2. DG
WC: 2
Abstellräume: 2
Balkon
Personenaufzug
Gäste-WC
Altbau
Gas
Parkett
Bad mit Fenster
Fußbodenheizung
Kabel/Sat-TV
offene Küche
Abstellraum
Offene Küche
Klimaanlage
vollerschlossen
schlüsselfertig mit Keller
Flachdach

Ähnliche Objekte

vergleichen
55PaahHd6cwjWn1g1VsWRM 1

Stilvolles Altbau-Juwel mit Balkon gegenüber...

€ 570.000
3
Schlafzimmer
1
Badezimmer
84 m2
Größe
Dezember 4, 2025
vergleichen
2whdUnmOk9v5tPv4sMCUAO

2-Zimmer Wohlfühloase mit großem Garten R...

€ 255.000
1
Badezimmer
42 m2
Größe
Dezember 4, 2025
vergleichen
5UKSD4b2ntMsjqRve1y3XN

BALKONTRAUM BEI DER HOHEN WARTE | HOCHWERTIG...

€ 399.000
2
Schlafzimmer
1
Badezimmer
52 m2
Größe
Dezember 4, 2025

AKKADIA Immobilienvermittlung GmbH
Elijah Euler-Rolle

Kontaktaufnahme









    • Preisinformation
      Objektpreis1.600.000,00 €

    Vergleichen