Objektbeschreibung
2-Zimmer-Wohnung zum Renovieren – mit zwei Loggien & Stellplatz
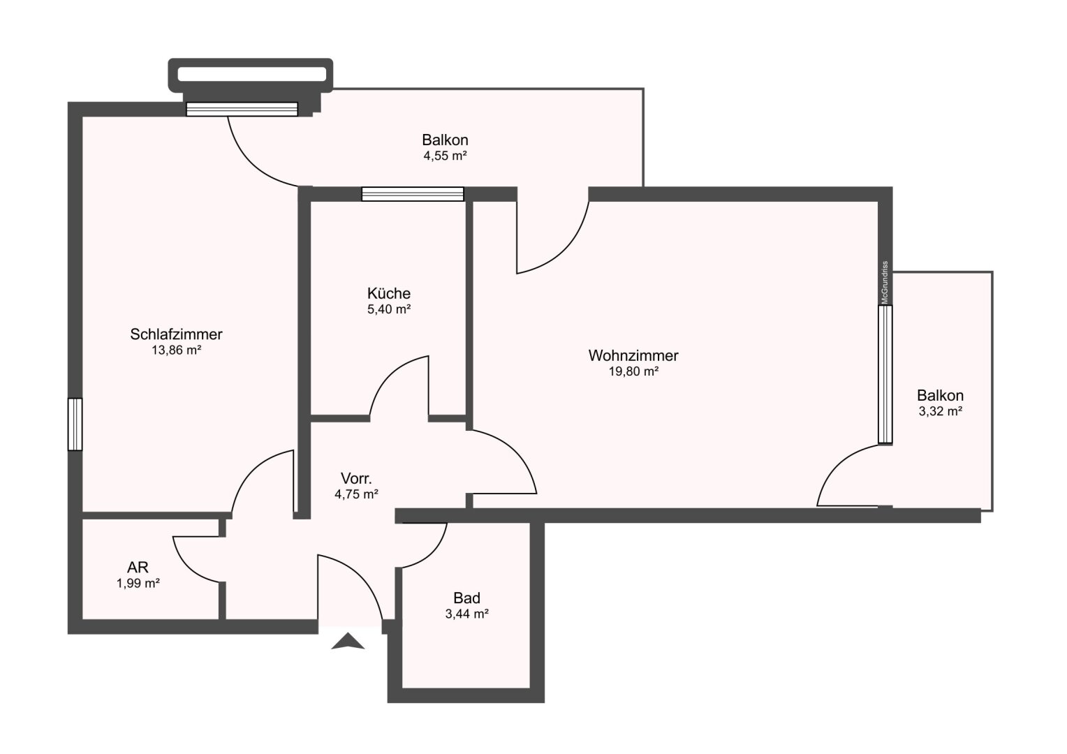
In ruhiger, zentraler Lage von Salzburg-Parsch befindet sich diese 2-Zimmer-Wohnung mit zwei Loggien, Kellerabteil und PKW-Stellplatz. Die Wohnung im 3. Obergeschoss ist über einen Aufzug erreichbar und liegt in einem gepflegten Mehrparteienhaus mit nur 16 Einheiten. Auf rund 50 m² Wohnfläche bietet die Wohnung eine ideale Basis für Eigennutzer oder
Mehr lesen
Objekt ID: 2295451
Preis: € 219.000
Nutzfläche: 49 m2
Gesamtfläche: 0 m2
Ziimmer insgesamt: 2
Schlafzimmer: 2
Badezimmer: 1
Miete/m2 €: 4569.46
Betriebskosten €: 371.21
Nutzungsart: Wohnen
Provisionspflichtig: ja
Provision: 3% des Kaufpreises zzgl. 20% USt.
HWB: 63 kWh/(m²*a)
HWB Klasse: C
FGEE: 1.05
E-Ausweis Gültig Bis:: 13.03.2030
Energieausweis Art: Bedarf
Balkon/Terrassen - Fläche: 7
Beziehbar: sofort
Etage: 3. Etage
WC: 1
Abstellräume: 1
Personenaufzug
Badewanne
Fahrradraum
Zentralheizung
Abstellraum
Freiplatz
Wasch-/Trockenraum
Fernwärme
Ähnliche Objekte
KAUF SALZBURG STADT – PREMIUMLAGE BORR...
€ 695.000
4
Schlafzimmer
1
Badezimmer
103 m2
Größe
Dezember 5, 2025
DAS perfekte EINZELSTÜCK | Garten-Maisonette...
€ 598.000
3
Schlafzimmer
1
Badezimmer
91 m2
Größe
Dezember 5, 2025






