Erweiterte Suche
Andere Eigenschaften
Suchagent aktivieren
Exklusive Anzeigen

Wohnkomfort mit Loggia – ideal für Stadtmenschen

€ 244.000,00

,

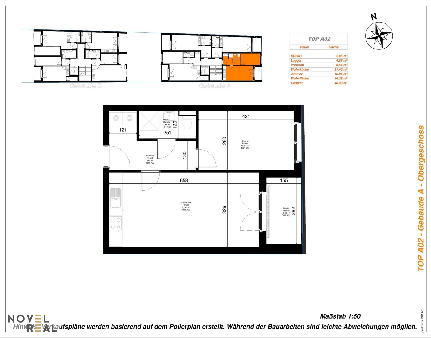
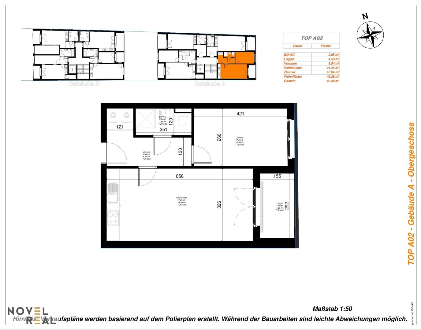
46.382 Zimmer
zu Favoriten hinzufügen
teilen
Suchergebnisse

Objektbeschreibung

Urbanes Wohnen mit Stil – Ihr neues Zuhause im Grünen!

Inmitten des dynamischen 11. Bezirks von Wien entsteht ein Wohnprojekt, das urbanen Lebensstil mit zeitgemäßem Komfort vereint. Es erwarten Sie moderne 1- bis 3-Zimmer-Wohnungen – jede mit eigener Freifläche – perfekt geeignet für Singles, Paare und kleine Familien.

Genießen Sie
Mehr lesen

Bezirk:
Bundesland:
PLZ: 1110
Land: Österreich
Objekt ID: 2298230
Preis: € 244.000
Nutzfläche: 46 m2
Gesamtfläche: 46 m2
Ziimmer insgesamt: 2
Schlafzimmer: 2
Badezimmer: 1
Nutzungsart: Anlage
HWB: 53,40 kWh/(m²*a)
HWB Klasse: C
FGEE: 0.76
Energieausweis Art: Bedarf
Balkon/Terrassen - Fläche: 4
Beziehbar: Vorrasichtliche Fertigstellung Frühjahr 2026
Etage: 1. Etage
WC: 1
Neubau
Personenaufzug
Parkett
Bad mit Fenster
Fußbodenheizung
Fahrradraum
offene Küche
Offene Küche
Luft-Wärmepumpe
Tiefgarage

Ähnliche Objekte

vergleichen
5RTsrmxqD9rTlYoHCamwwy

Einziehen & Aufatmen: Wohnung mit sonnig...

€ 245.000
1
Badezimmer
46 m2
Größe
Dezember 5, 2025
vergleichen
4c05bcUvvBAD7z7TfDnUMB

Sonnige Aussichten – Wohnen mit Freifläche

€ 194.000
1
Schlafzimmer
1
Badezimmer
37 m2
Größe
Dezember 5, 2025
vergleichen
75hl6AcbTmx7qp48bmMjdF

Wohnen mit Perspektive – Loggia inklusive

€ 180.000
1
Schlafzimmer
1
Badezimmer
37 m2
Größe
Dezember 5, 2025

Novel Real Immobilien GmbH
Michael Hofer

Kontaktaufnahme









    • Preisinformation
      Objektpreis244.000,00 €

    Vergleichen