Objektbeschreibung
Im Herzen der Josefstadt gelangt ab sofort in einem denkmalgeschützten Haus dieses Lager im Erdgeschoss zur unbefristeten Vermietung.
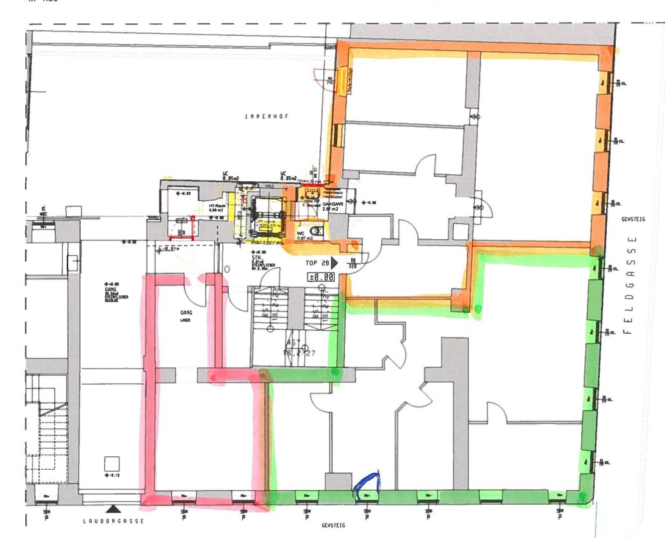
Siehe auf der beiliegenden Planskizze, die rosa markierte Fläche.
Ebenso ist eine Vermietung an Personen möglich, die ihre unternehmerischen Umsätze aus einer unechten Umsatzsteuerbefreiung gemäß § 6 (1) 27 UStG, lukrieren. Sollte dies nicht der
Mehr lesen
Objekt ID: 2308498
Preis: € 399.69
Nutzfläche: 0 m2
Gesamtfläche: 28 m2
Ziimmer insgesamt: 2
Schlafzimmer: 2
Badezimmer: 0
Miete/m2 €: 9
Miete (netto) €: 248.94
Betriebskosten €: 49.86
Gesamtbelastung €: 399.69
Nutzungsart: Gewerbe
Provisionspflichtig: ja
Kaution: 1.200,00 €
HWB: 161,80 kWh/(m²*a)
E-Ausweis Gültig Bis:: 02.02.2035
Energieausweis Art: Bedarf
Beziehbar: sofort
Max. Mietdauer: unbefristet
Etage: EG
barrierefrei
Altbau
Fahrradraum
Fernheizung
Fernwärme


![Moderne Büroflächen mit Entwicklungspotenzial in Toplage [A] 4IyPVpnWA4MMplRFhn2vDG](https://gesucht-gefunden.at/wp-content/uploadstorage/2025/12/4IyPVpnWA4MMplRFhn2vDG-525x350.jpg)



