Erweiterte Suche
Andere Eigenschaften
Suchagent aktivieren
Exklusive Anzeigen

Lager im Erdgeschoss in der Josefstadt !

€ 399,69

,

2 Zimmer
zu Favoriten hinzufügen
teilen
Suchergebnisse

Objektbeschreibung

Im Herzen der Josefstadt gelangt ab sofort in einem denkmalgeschützten Haus dieses Lager im Erdgeschoss zur unbefristeten Vermietung.

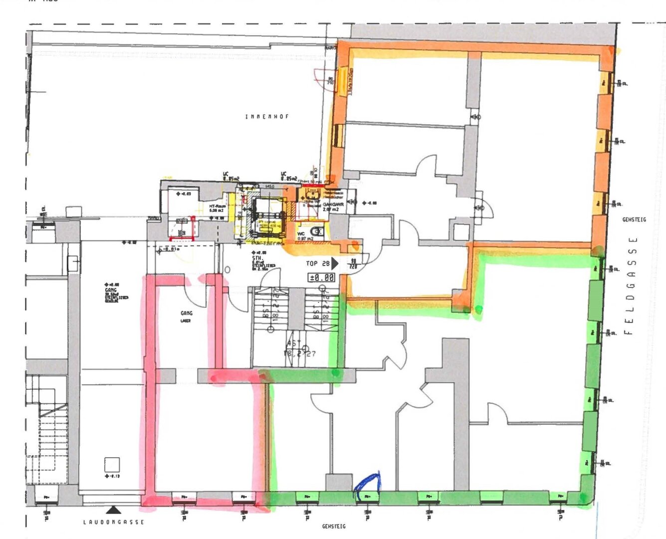
Siehe auf der beiliegenden Planskizze, die rosa markierte Fläche.

Ebenso ist eine Vermietung an Personen möglich, die ihre unternehmerischen Umsätze aus einer unechten Umsatzsteuerbefreiung gemäß § 6 (1) 27 UStG, lukrieren. Sollte dies nicht der
Mehr lesen

Ort:
Bezirk:
Bundesland:
PLZ: 1080
Land: Österreich
Objekt ID: 2308498
Preis: € 399.69
Nutzfläche: 0 m2
Gesamtfläche: 28 m2
Ziimmer insgesamt: 2
Schlafzimmer: 2
Badezimmer: 0
Miete/m2 €: 9
Miete (netto) €: 248.94
Betriebskosten €: 49.86
Gesamtbelastung €: 399.69
Nutzungsart: Gewerbe
Provisionspflichtig: ja
Kaution: 1.200,00 €
HWB: 161,80 kWh/(m²*a)
E-Ausweis Gültig Bis:: 02.02.2035
Energieausweis Art: Bedarf
Beziehbar: sofort
Max. Mietdauer: unbefristet
Etage: EG
barrierefrei
Altbau
Fahrradraum
Fernheizung
Fernwärme
Planskizze: Top 2a + Top 2b + Top 2c
Planskizze: Top 2a + Top 2b + Top 2c

Ähnliche Objekte

vergleichen
1M6FilYiAssBwMse8QUa5E

Erstbezug – „Mary & Max̶...

2
Schlafzimmer
1
Badezimmer
53 m2
Größe
Dezember 7, 2025

IMMOBILIENJÄGER
Andrea Jäger

Kontaktaufnahme









    • Preisinformation
      Miete netto248,94 €
      Betriebskosten49,86 €
      Gesamtbelastung399,69 €
      Objektpreis399,69 €

    Vergleichen