Objektbeschreibung
Im Herzen der Josefstadt gelangt ab sofort in einem denkmalgeschützten Haus diese Fläche im Erdgeschoss zur unbefristeten Vermietung.
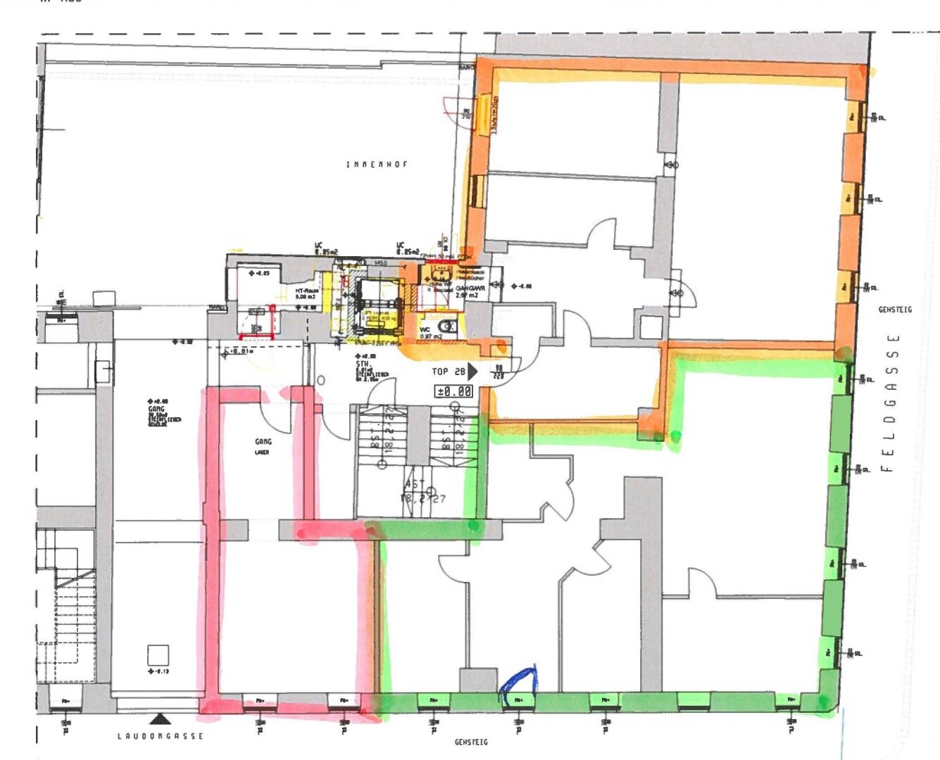
Dieses Objekt im Ausmaß von ca. 92 m² kann als Ordination oder Büro genutzt werden und verfügt über einen straßenseitigen Eingang.
Siehe auf der beiliegenden Planskizze, die grün markierte Fläche.
Optional
Mehr lesen
Objekt ID: 2308530
Nutzfläche: 0 m2
Gesamtfläche: 92 m2
Ziimmer insgesamt: 3
Schlafzimmer: 3
Badezimmer: 0
Miete/m2 €: 12.2
Miete (netto) €: 1117.52
Betriebskosten €: 164.88
Nutzungsart: Gewerbe
Provisionspflichtig: ja
Kaution: 4.830,00 €
HWB: 161,80 kWh/(m²*a)
E-Ausweis Gültig Bis:: 02.02.2035
Energieausweis Art: Bedarf
Beziehbar: sofort
Max. Mietdauer: unbefristet
Etage: EG
WC: 2
Altbau
Fahrradraum
Fernheizung
Fernwärme


![Moderne Büroflächen mit Entwicklungspotenzial in Toplage [A] 4IyPVpnWA4MMplRFhn2vDG](https://gesucht-gefunden.at/wp-content/uploadstorage/2025/12/4IyPVpnWA4MMplRFhn2vDG-525x350.jpg)



