Erweiterte Suche
Andere Eigenschaften
Suchagent aktivieren
Exklusive Anzeigen

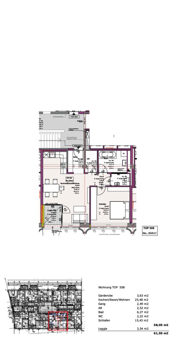
2 ZIMMERWOHNUNG MIT MÖBLIERTER KÜCHE – TOP 508

€ 872,56

Fabrikstraße 32-34, ,

61.59
zu Favoriten hinzufügen
teilen
Suchergebnisse

Objektbeschreibung

Willkommen in Ihrem neuen Zuhause in der charmanten Stadt Linz! Diese ansprechende Wohnung in der 5. Etage bietet Ihnen nicht nur ein modernes Wohnambiente, sondern auch eine perfekte Lage, die alle Annehmlichkeiten des urbanen Lebens vereint.

Mit einer großzügigen Fläche von 61,59 m² ist diese Wohnung ideal für Singles, Paare
Mehr lesen

Adresse: Fabrikstraße 32-34
Ort:
Bezirk:
Bundesland:
PLZ: 4020
Land: Österreich
Objekt ID: 2309193
Preis: € 872.56
Nutzfläche: 62 m2
Gesamtfläche: 0 m2
Ziimmer insgesamt: 0
Schlafzimmer: 0
Badezimmer: 1
Miete (netto) €: 641.73
USt €: 79.32
Gesamtbelastung €: 872.56
Nutzungsart: Wohnen
Provisionspflichtig: nein
Kaution: 2.760,00 €
Balkon/Terrassen - Fläche: 3
Beziehbar: 01.03.2026
Etage: 5. Etage
WC: 1
barrierefrei
Personenaufzug
offene Küche
Offene Küche

Ähnliche Objekte

vergleichen
4QpjHFQ7I33KYRN2LCJmkj
PROVISIONSFREI

Charmante 2-Zimmer-Wohnung in Linz zu mieten...

€ 792.07
2
Schlafzimmer
1
Badezimmer
56 m2
Größe
Dezember 7, 2025
vergleichen
2YnWZQ9sTAizulfLDQWvmJ
PROVISIONSFREI

EINMALIG !! WOHNEN ÜBER DEN DÄCHERN VON LINZ...

€ 1.842.59
3
Schlafzimmer
2
Badezimmer
118 m2
Größe
Dezember 7, 2025
vergleichen
6gc7EIKVzeHOBCxicfxaPl
PROVISIONSFREI

EXKLUSIVE 3 ZIMMERWOHNUNG IN ABSOLUTER ZENTR...

€ 1.855.69
3
Schlafzimmer
1
Badezimmer
125 m2
Größe
Dezember 4, 2025

AREV Immobilien GmbH
Christa Sinzinger

Kontaktaufnahme









    • Preisinformation
      Miete netto641,73 €
      Ust.79,32 €
      Gesamtbelastung872,56 €
      Objektpreis872,56 €

    Vergleichen