Objektbeschreibung
Das Projekt umfasst die Errichtung einer modernen Wohnanlage mit insgesamt 12 Einheiten, die durch eine klare Architektur, hochwertige Bauweise und durchdachte Grundrisse überzeugen. Besonderes Augenmerk wurde auf großzügige Fensterflächen gelegt, die für helle Räume und eine angenehme Wohnatmosphäre sorgen. Jede Wohnung verfügt über private Freiflächen – sei es ein Balkon,
Mehr lesen
Objekt ID: 2310348
Preis: € 255.000
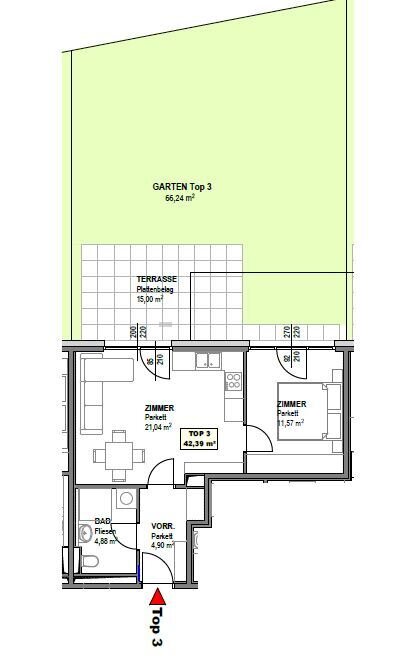
Nutzfläche: 42 m2
Gesamtfläche: 0 m2
Ziimmer insgesamt: 0
Schlafzimmer: 0
Badezimmer: 1
Nutzungsart: Wohnen
Provisionspflichtig: ja
Provision: 3% des Kaufpreises zzgl. 20% USt.
HWB: 36,94 kWh/(m²*a)
HWB Klasse: B
FGEE: 0.73
E-Ausweis Gültig Bis:: 17.09.2029
Energieausweis Art: Bedarf
Balkon/Terrassen - Fläche: 15
Beziehbar: sofort
Etage: EG
WC: 1
Neubau
Personenaufzug
Dusche
Fußbodenheizung
Massiv
Massivbauweise
schlüsselfertig mit Keller
Flachdach
Ähnliche Objekte
Ruhige, hochwertig renovierte Hofwohnung mit...
€ 199.800
2
Schlafzimmer
1
Badezimmer
40 m2
Größe
Mai 3, 2026
Helle 3-Zimmer-Wohnung mit gr. Terrasse nahe...
€ 497.000
3
Schlafzimmer
1
Badezimmer
75 m2
Größe
Mai 3, 2026
Gartenwohnung mit Seltenheitswert – Ruhe, Gr...
€ 249.000
1
Schlafzimmer
1
Badezimmer
41 m2
Größe
Mai 3, 2026










