Objektbeschreibung
Zum Verkauf gelangen 16 topmoderne, schlüsselfertige Wohnungen mit Außenflächen (Garten, Balkon, Terrassen) sowie 1 Gechäftslokal und 9 Tiefgaragen-Stellplätze.
Die ideal aufgeteilten 1 bis 4 Zimmer Wohnungen können auch als Anlegerwohnungen zum Nettopreis (auf Anfrage) erworben werden.
Ausgestattet mit moderner und hochwertiger Technik sowie zeitlosem Design bieten sie außergewöhnlichen Wohnkomfort.
Mehr lesen
Objekt ID: 2310495
Preis: € 243.600
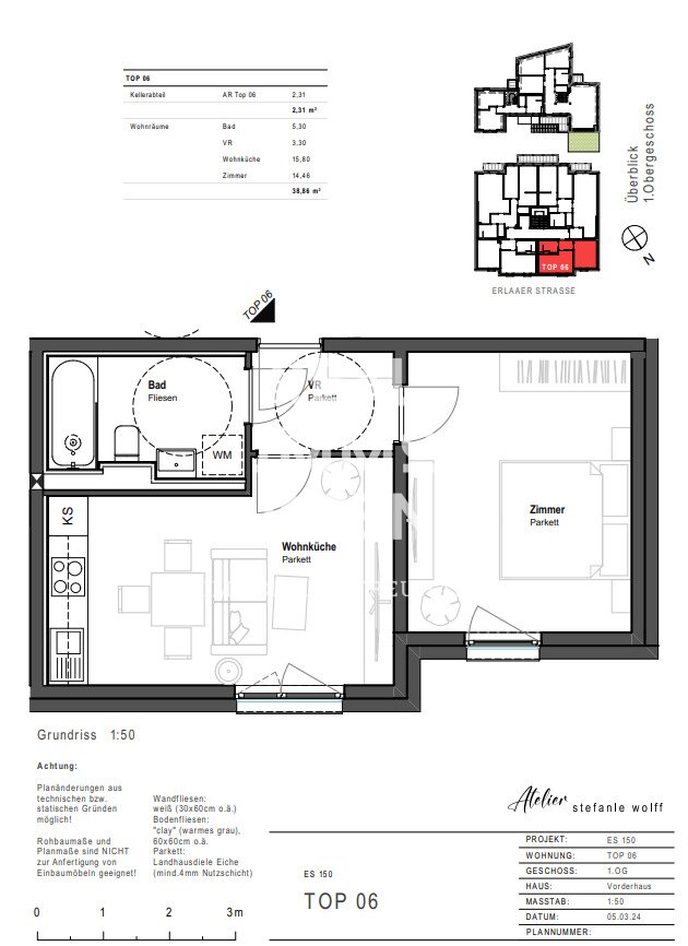
Nutzfläche: 39 m2
Gesamtfläche: 0 m2
Ziimmer insgesamt: 2
Schlafzimmer: 2
Badezimmer: 0
Nutzungsart: Anlage
Provisionspflichtig: ja
Provision: 3% des Kaufpreises zzgl. 20% USt.
HWB: 36,40 kWh/(m²*a)
HWB Klasse: B
FGEE: 0.68
Energieausweis Art: Bedarf
Etage: 1. Etage
barrierefrei
Neubau
Ähnliche Objekte
Geräumige 4-Zimmer-Wohnung in ruhiger Lage m...
€ 699.000
4
Schlafzimmer
1
Badezimmer
103 m2
Größe
Dezember 10, 2025
Helle 4-Zimmer-Wohnung mit großzügigem Rauma...
€ 440.000
4
Schlafzimmer
1
Badezimmer
91 m2
Größe
Dezember 10, 2025






