Erweiterte Suche
Suchagent aktivieren
Exklusive Anzeigen

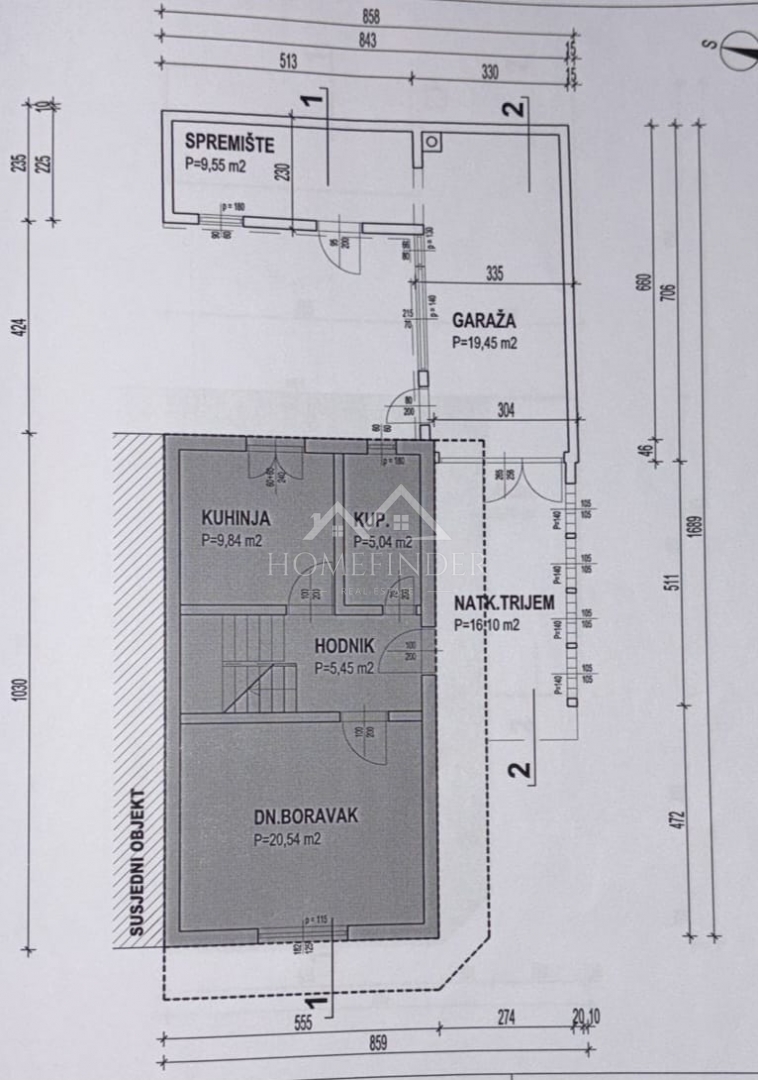
Haus Malešnica, Stenjevec, 140m2

€ 235.000,00

,

3 Zimmer
zu Favoriten hinzufügen
teilen
Suchergebnisse

Objektbeschreibung

ID CODE: 735

Bezirk:
PLZ: 10000
Land: Croatia
Objekt ID: 2314296
Preis: € 235.000
Nutzfläche: 0 m2
Gesamtfläche: 84 m2
Ziimmer insgesamt: 3
Schlafzimmer: 3
Badezimmer: 1
Nutzungsart: Wohnen
Provisionspflichtig: ja
WC: 1

Ähnliche Objekte

vergleichen
1765447519 whatsapp image 2025 12 11 at 10

Haus Donje Vrapče, Stenjevec, 57m2

€ 125.000
1
Schlafzimmer
1
Badezimmer
April 24, 2026
vergleichen
1742331795 20220929 131117

Haus Donje Vrapče, Stenjevec, 296m2

€ 290.000
12
Schlafzimmer
März 24, 2026
vergleichen
1760896918 donje vrapce kuca nizu 180

Haus Donje Vrapče, Stenjevec, 196m2

€ 320.000
6
Schlafzimmer
2
Badezimmer
Dezember 26, 2025


Home Finder

Kontaktaufnahme









    • Preisinformation
      Objektpreis235.000,00 €

    Vergleichen