Objektbeschreibung
Raus aus dem Gas – effiziente Luftwärmepumpe
Vollwärmeschutz – Niedrigenergiehaus
Sofort bezugsbereit – keine unnötigen Zinsphasen
Smart-Home – Steuern Sie die Technik (Beschattung, Klima, Heizung, Licht etc.) vom Handy aus
Realisiert wurden in hochwertiger Massivbauweise zwei Doppelhäuser. Ein Vollwärmeschutz verbunden mit dreifach verglasten Fenstern, Luftwärmepumpe und Klimavorbereitung, sorgt für
Mehr lesen
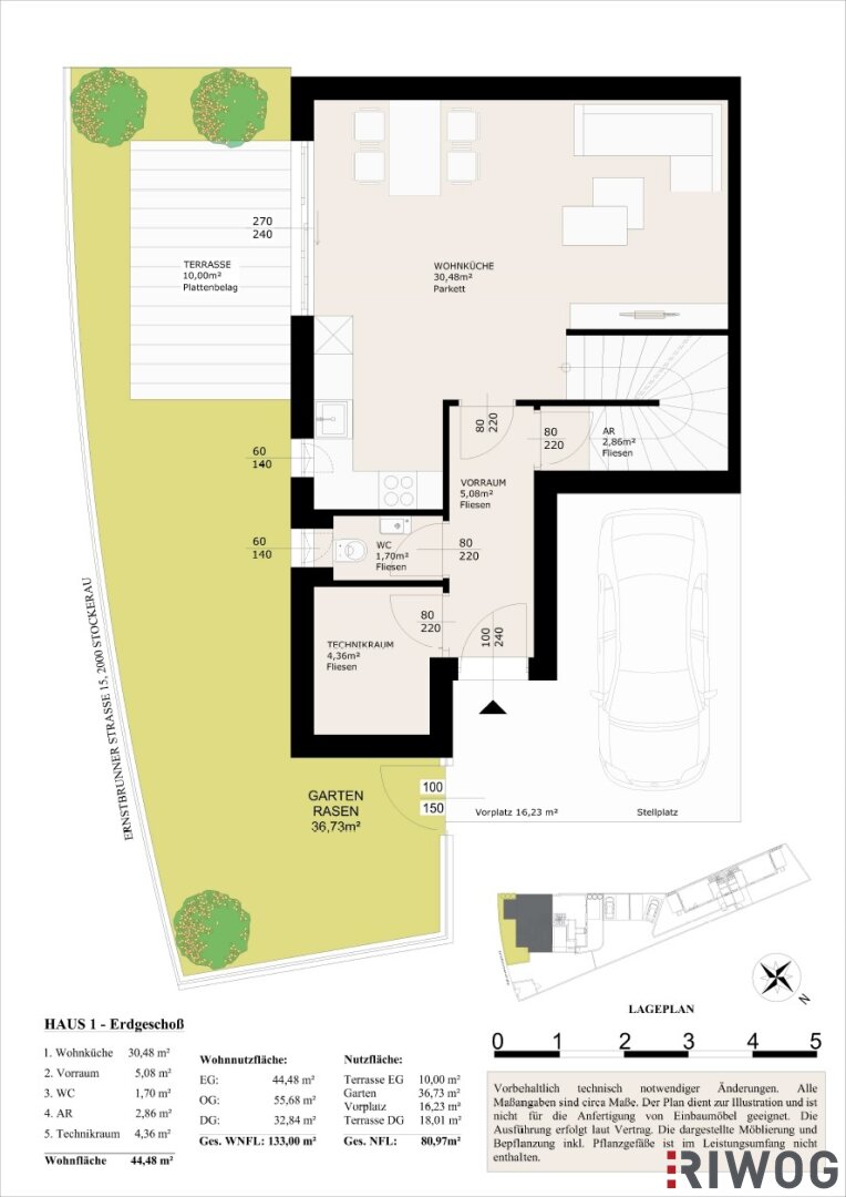
Adresse: Ernstbrunnerstraße 15
Ort: Stockerau
Bezirk: 2000
Bundesland: Niederösterreich
PLZ: 2000
Land: Österreich
Objekt ID: 2316288
Preis: € 613.000
Nutzfläche: 133 m2
Gesamtfläche: 0 m2
Ziimmer insgesamt: 5
Schlafzimmer: 5
Badezimmer: 2
Nutzungsart: Wohnen
Provisionspflichtig: ja
Provision: 3% des Kaufpreises zzgl. 20% USt.
HWB: 29 kWh/(m²*a)
HWB Klasse: B
FGEE: 0.64
E-Ausweis Gültig Bis:: 15.05.2032
Energieausweis Art: Bedarf
Balkon/Terrassen - Fläche: 28
Beziehbar: sofort
Etage: EG
WC: 3
Abstellräume: 2
Neubau
Gäste-WC
Parkett
Bad mit Fenster
Fußbodenheizung
Kabel/Sat-TV
Abstellraum
Carport
Luft-Wärmepumpe
Massiv
Massivbauweise
Gartennutzung
Flachdach
Niedrigenergiehaus
Ähnliche Objekte
DAS PALMENHAUS! Naturverbunden und einzigart...
€ 1.099.000
6
Schlafzimmer
420 m2
Größe
Dezember 9, 2025
Erstbezug mit 135m², 5 Zimmern, Eigengarten,...
€ 663.000
5
Schlafzimmer
2
Badezimmer
135 m2
Größe
Dezember 8, 2025








