Objektbeschreibung
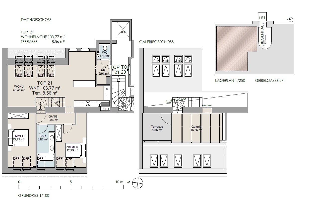
Diese stilvolle 3-Zimmer-Dachgeschosswohnung mit Terrasse nach Westen ausgerichtet verbindet den zeitlosen Charme klassischer Wiener Architektur mit hochwertiger, moderner Ausstattung. Bereits beim Betreten spürt man das harmonische Zusammenspiel aus Eleganz und Komfort – ein Zuhause, in dem man ankommt und sich sofort wohlfühlt.
Die Wohnung wurde mit viel Liebe zum Detail
Mehr lesen
Objekt ID: 2319506
Preis: € 759.000
Nutzfläche: 104 m2
Gesamtfläche: 112 m2
Ziimmer insgesamt: 3
Schlafzimmer: 3
Badezimmer: 1
Nutzungsart: Wohnen
Provisionspflichtig: ja
Provision: 3% des Kaufpreises zzgl. 20% USt.
HWB: 101,30 kWh/(m²*a)
HWB Klasse: D
FGEE: 1.59
Energieausweis Art: Bedarf
Balkon/Terrassen - Fläche: 8
Beziehbar: per sofort
Etage: 1. DG / Dachgeschoss mit Lift
WC: 1
Abstellräume: 1
Neubau
Personenaufzug
Bad mit Fenster
Fußbodenheizung
offene Küche
Offene Küche
Klimaanlage
Estrich
Ähnliche Objekte
Generalsanierte 2,5-Zimmer Neubauwohnung in ...
€ 280.000
2
Schlafzimmer
1
Badezimmer
61 m2
Größe
März 18, 2026
2-Zimmer Dachgeschosswohnung mit Balkon und ...
€ 404.000
2
Schlafzimmer
1
Badezimmer
51 m2
Größe
März 18, 2026
2-Zimmer Dachgeschosswohnung auf einer Ebene...
€ 310.000
2
Schlafzimmer
1
Badezimmer
42 m2
Größe
März 18, 2026























