Objektbeschreibung
Um 1900 vom renommierten Wiener Architekten Alois Koch für die Obsthändlerfamilie Hüber erbaut, trägt das klassische Biedermeierhaus im 11. Bezirk die Handschrift einer Zeit, in der auf echtes Handwerk, bleibende Qualität und zeitlose Bauweise Wert gelegt wurde.
Ruhig gelegen, zwischen einem gepflegten Garten und einem begrünten Innenhof, befindet sich
Mehr lesen
Objekt ID: 2322816
Preis: € 550.000
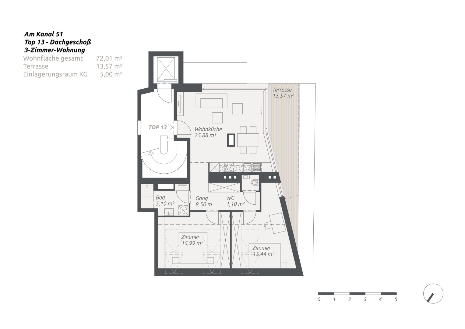
Nutzfläche: 72 m2
Gesamtfläche: 890 m2
Ziimmer insgesamt: 3
Schlafzimmer: 3
Badezimmer: 1
Nutzungsart: Wohnen
Provisionspflichtig: ja
Provision: 3% des Kaufpreises zzgl. 20% USt.
Balkon/Terrassen - Fläche: 13
Beziehbar: 2026
Etage: 1. DG
WC: 1
barrierefrei
Neubau
Personenaufzug
Gäste-WC
Bad mit Fenster
Fußbodenheizung
Fahrradraum
Abstellraum
rollstuhlgerecht
Luft-Wärmepumpe
vollerschlossen
Dielen
Gartennutzung
Alarmanlage
Ähnliche Objekte
Erstbezug! Toll aufgeteilte, neu sanierte 2 ...
€ 369.000
3
Schlafzimmer
1
Badezimmer
58 m2
Größe
Dezember 10, 2025
Erstbezug!! Moderne 2-Zimmer Wohnung im 1. D...
€ 528.000
2
Schlafzimmer
1
Badezimmer
81 m2
Größe
Dezember 10, 2025








