Objektbeschreibung
Vodice, Neubau, attraktive Lage, das Wohngebäude besteht aus insgesamt 14 Wohneinheiten.
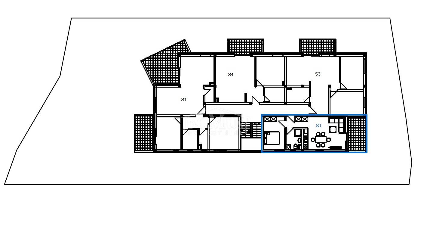
Die Wohnung SJ14 befindet sich im zweiten Stock und hat eine Nutzfläche von 48,80 m². Sie besteht aus einem Eingangsflur, einem Badezimmer, ein Schlafzimmer, einer Küche und einem Wohnzimmer mit Zugang zu einer Loggia von 9,65 m².
Mehr lesen
Objekt ID: 2325477
Preis: € 190.000
Nutzfläche: 0 m2
Gesamtfläche: 0 m2
Ziimmer insgesamt: 2
Schlafzimmer: 2
Badezimmer: 1
Nutzungsart: Wohnen
Provisionspflichtig: ja









