Objektbeschreibung
Vodice, Neubau, attraktive Lage, das Wohngebäude umfasst insgesamt 14 Wohneinheiten.
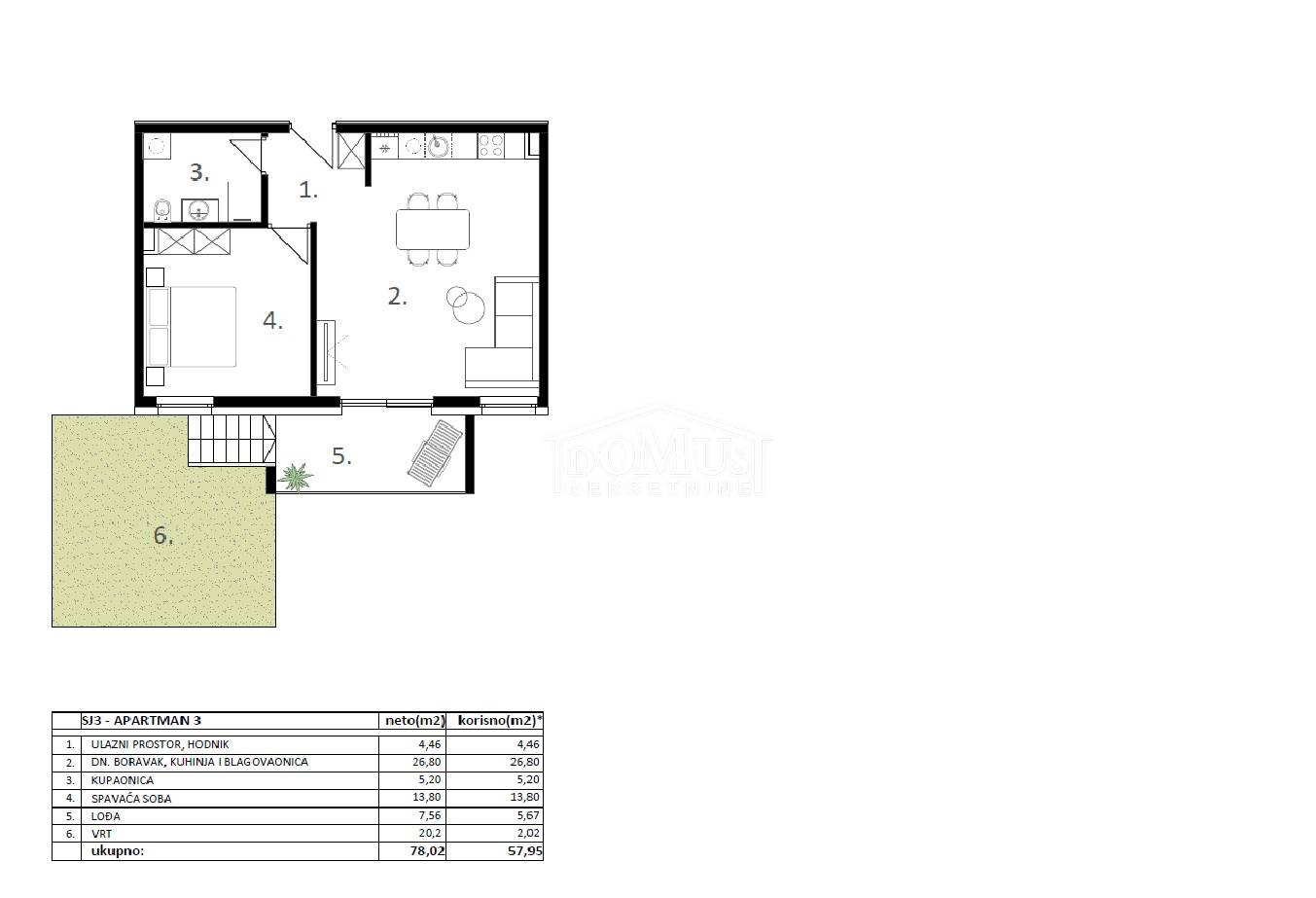
Die Wohnung SJ3 befindet sich im Erdgeschoss des Gebäudes und verfügt über eine Nutzfläche von 57,95 m². Sie besteht aus einem Eingangsflur, einem Badezimmer, ein Schlafzimmer, einer Küche und einem Wohnzimmer mit Zugang zu einer 7,56 m² großen Loggia.
Mehr lesen
Objekt ID: 2325554
Preis: € 200.000
Nutzfläche: 0 m2
Gesamtfläche: 0 m2
Ziimmer insgesamt: 2
Schlafzimmer: 2
Badezimmer: 1
Nutzungsart: Wohnen
Provisionspflichtig: ja









