Erweiterte Suche
Suchagent aktivieren
Exklusive Anzeigen

ROGOZNICA – NEUBAU, ZWEIZIMMERWOHNUNG S3-1, FLÄCHE = 59,10 M²

€ 250.000,00

,

3 Zimmer
zu Favoriten hinzufügen
teilen
Suchergebnisse

Objektbeschreibung

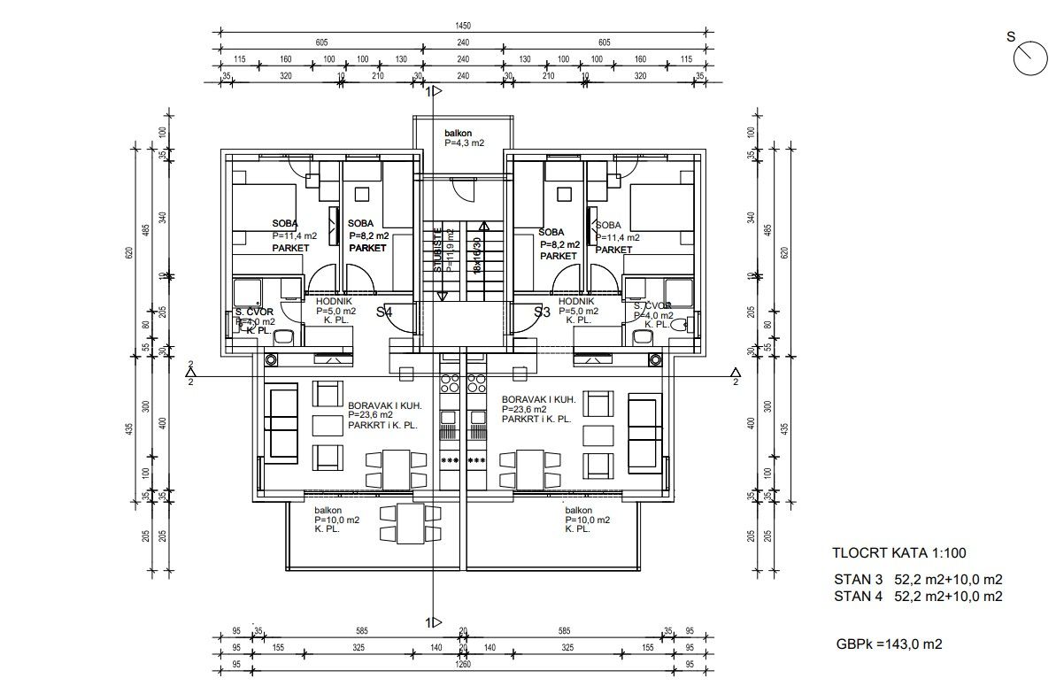
Wohnung S3-1 befindet sich im ersten Stock eines modernen Wohngebäudes und besticht durch ihre funktionale Raumaufteilung sowie großzügige Außenbereiche. Netto-Nutzfläche: 59,10 m².

Grundriss und Raumaufteilung:
Flur – 5,00 m²
Schlafzimmer 1 – 11,40 m²
Schlafzimmer 2 – 8,20 m²
Badezimmer – 4,00 m²
Wohnzimmer mit
Mehr lesen

Bezirk:
PLZ: 22203
Land: Croatia
Objekt ID: 2327384
Preis: € 250.000
Nutzfläche: 0 m2
Gesamtfläche: 0 m2
Ziimmer insgesamt: 3
Schlafzimmer: 3
Badezimmer: 1
Nutzungsart: Wohnen
Provisionspflichtig: ja

Ähnliche Objekte

vergleichen
1760082355 img 9476

Rogoznica, Zentrum, neues Projekt, Dreizimme...

€ 300.000
4
Schlafzimmer
2
Badezimmer
April 26, 2026
vergleichen
1760082987 img 9504

Rogoznica, Zentrum, neues Projekt, Zweizimme...

€ 290.000
3
Schlafzimmer
1
Badezimmer
April 26, 2026
vergleichen
1739352395 whatsapp image 2025 01 21 at 10

Wohnung Ražanj, Rogoznica, 74,75m2

€ 267.000
3
Schlafzimmer
1
Badezimmer
April 26, 2026

Vergleichen