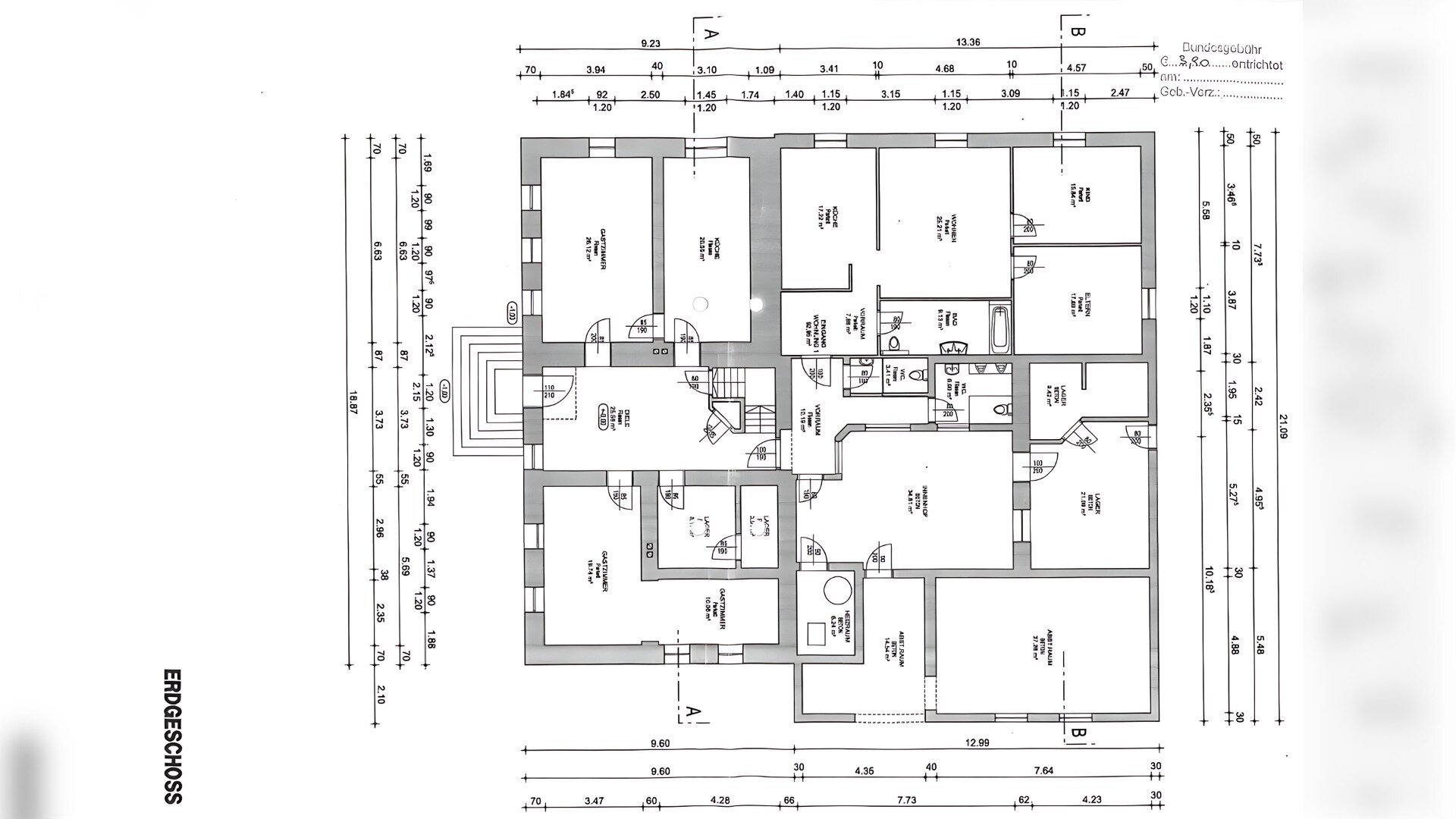
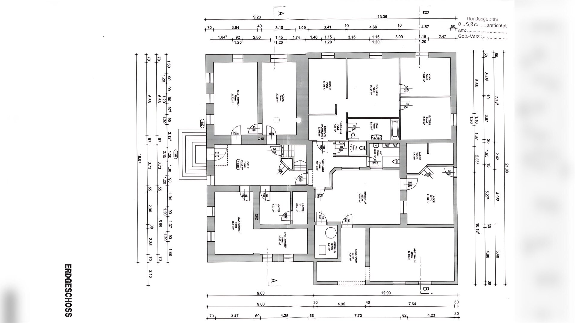
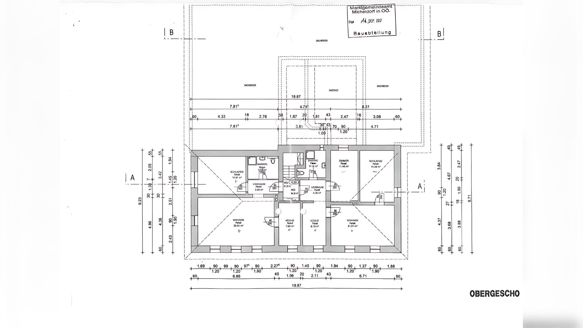
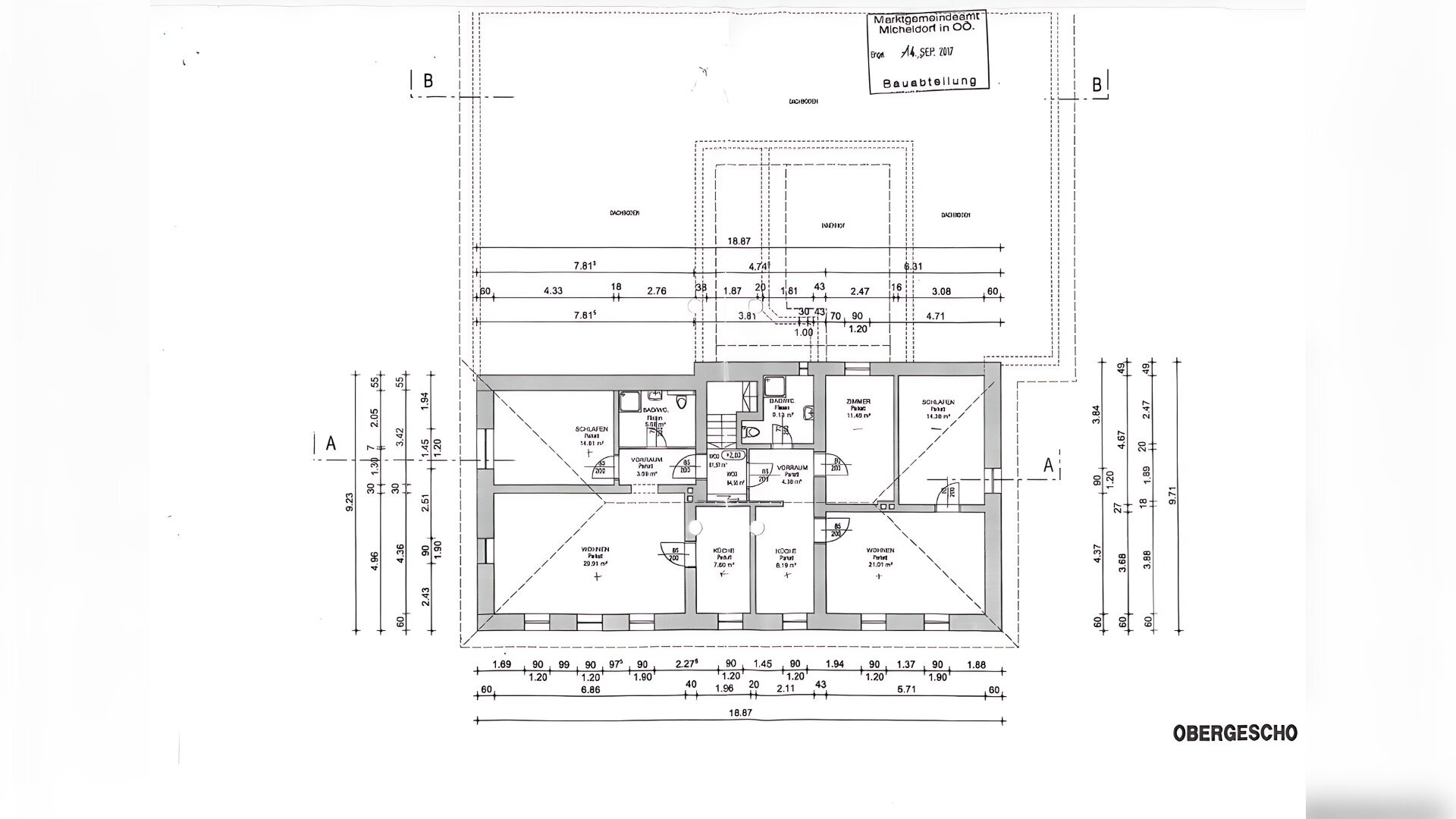
Objektbeschreibung
Dieses Objekt bietet eine seltene Kombination: Wohnen, Arbeiten und Gastgebersein in einem Haus. Die großzügige Geschäftsfläche im Erdgeschoss – bisher als Gastronomie genutzt – bildet das Herzstück dieser Immobilie. Stellen Sie sich vor, wie Sie den Raum nach Ihren Vorstellungen neu interpretieren: als Café oder Bistro, als helle Praxis, als
Mehr lesen
Objekt ID: 2328593
Preis: € 750.000
Nutzfläche: 254 m2
Gesamtfläche: 420 m2
Ziimmer insgesamt: 9
Schlafzimmer: 9
Badezimmer: 4
Nutzungsart: Anlage
Provisionspflichtig: ja
Provision: 3% des Kaufpreises zzgl. 20% USt.
HWB: 158 kWh/(m²*a)
HWB Klasse: E
FGEE: 1.73
E-Ausweis Gültig Bis:: 05.07.2033
Energieausweis Art: Bedarf
Beziehbar: nach Vereinbarung
WC: 6
Abstellräume: 2
Einbauküche
Gäste-WC
Altbau
Fußbodenheizung
Kabel/Sat-TV
Pellets
Abstellraum
Rollläden
Laminat
Freiplatz
Massiv
Massivbauweise
vollerschlossen
Gartennutzung
Gastterrasse
Pissoir
Räume veränderbar
Satteldach
Rampe
















