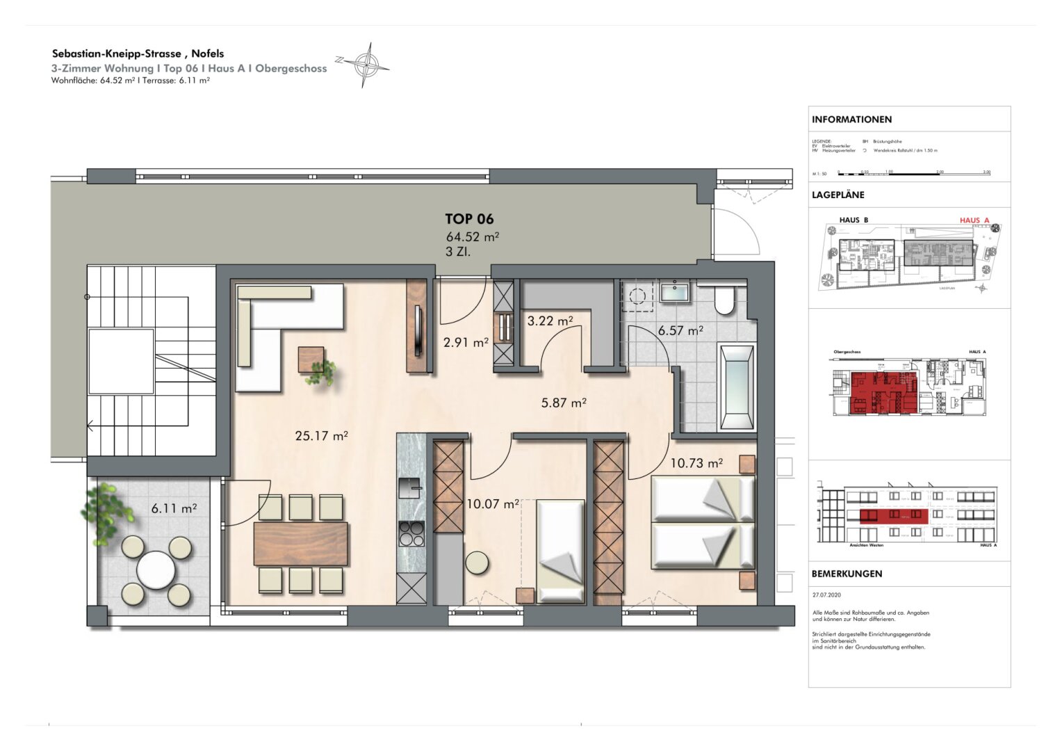
Objektbeschreibung
Diese moderne Etagenwohnung bietet ein stilvolles Ambiente, hochwertige Materialien und eine Ausstattung, die den Alltag außergewöhnlich komfortabel macht.
AUSSTATTUNGS-HIGHLIGHTS
* Großer Wohn- & Essbereich – hell, offen & einladend
* 2 Schlafzimmer
* Einbauküche mit Miele-Markengeräten
* Parkettboden in Wohn- und Schlafräumen
* Gefliestes Badezimmer
Mehr lesen
Dokumente
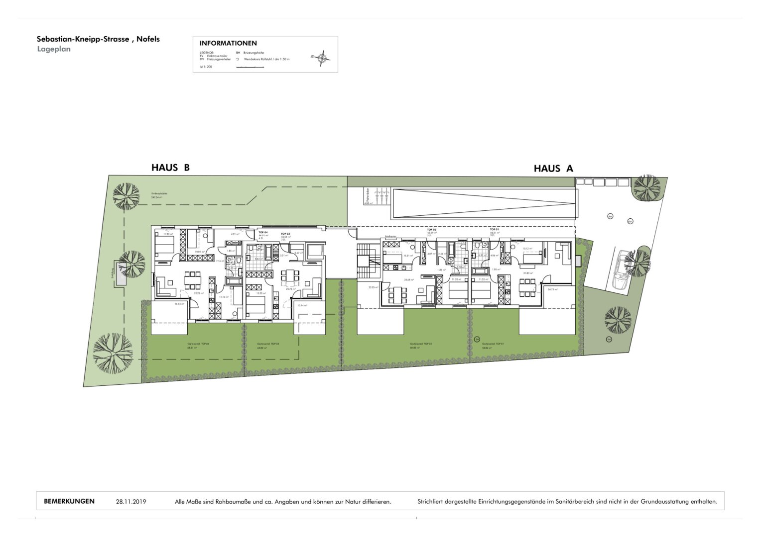
Adresse: Sebastian-Kneipp-Straße 18
Ort: Feldkirch
Bezirk: 6800
Bundesland: Vorarlberg
PLZ: 6800
Land: Österreich
Objekt ID: 2330237
Preis: € 1.352.62
Nutzfläche: 65 m2
Gesamtfläche: 0 m2
Ziimmer insgesamt: 3
Schlafzimmer: 3
Badezimmer: 1
Miete (netto) €: 1046.82
USt €: 120.3
Gesamtbelastung €: 1352.62
Nutzungsart: Wohnen
Provisionspflichtig: nein
Kaution: 3 Bruttomonatsmieten
HWB: 35 kWh/(m²*a)
HWB Klasse: B
FGEE: 0.68
E-Ausweis Gültig Bis:: 03.11.2031
Energieausweis Art: Bedarf
Balkon/Terrassen - Fläche: 6
Beziehbar: 01.03.2026
Etage: 1. Obergeschoss
WC: 1
Abstellräume: 1
barrierefrei
Neubau
Personenaufzug
Parkett
Badewanne
Fußbodenheizung
Kabel/Sat-TV
Fahrradraum
Abstellraum
rollstuhlgerecht
Freiplatz
vollerschlossen
Elektro
schlüsselfertig mit Keller
seniorengerecht
Flachdach
Neubaustandard
Ähnliche Objekte
Wohnen im Zentrum von Feldkirch: Moderne 2-Z...
€ 970.34
2
Schlafzimmer
1
Badezimmer
53 m2
Größe
Dezember 13, 2025








