Objektbeschreibung
Lichtdurchflutete und großzügige Räumlichkeiten im Herzen von Wien!
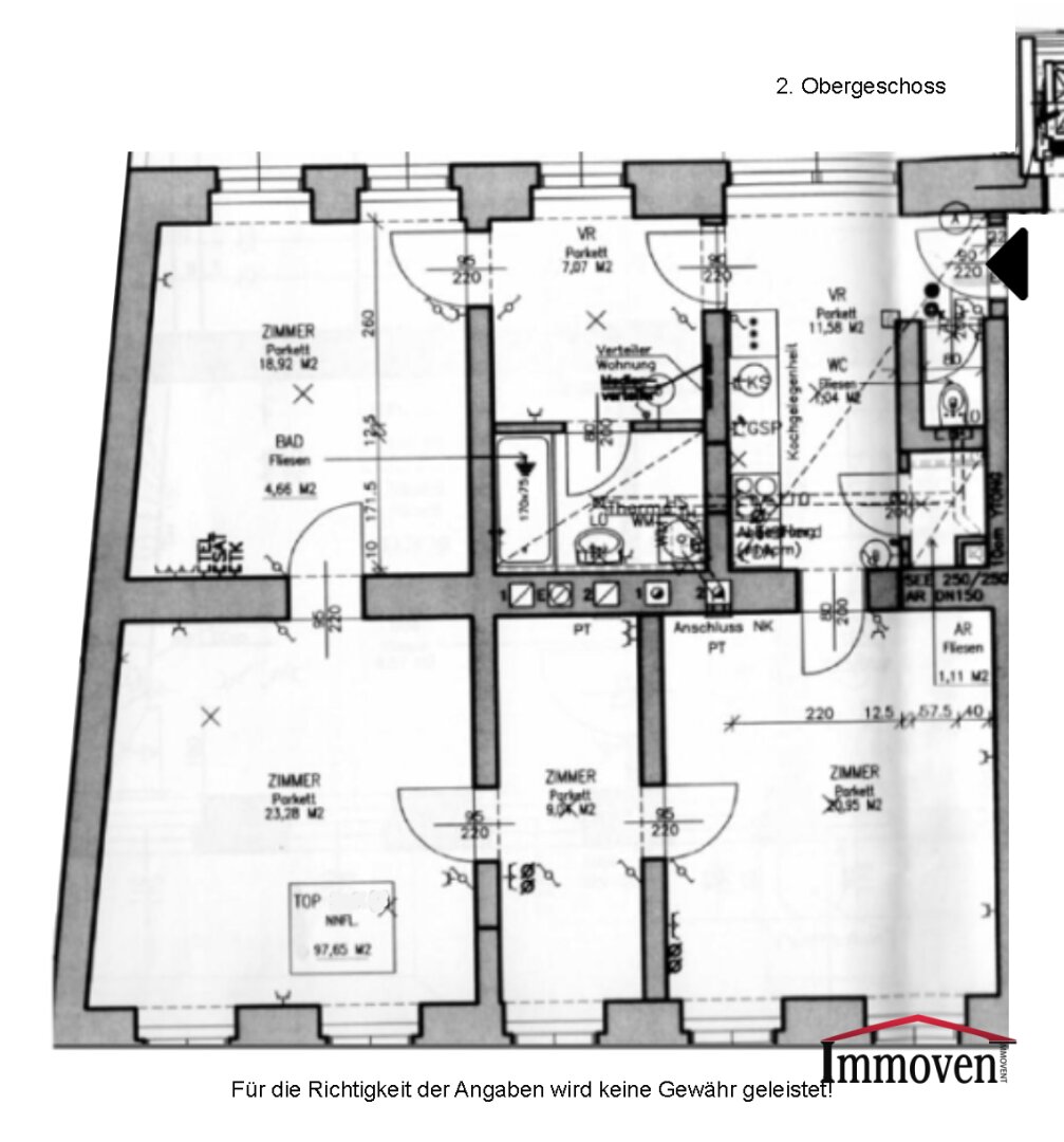
Die 3,5-Zimmerwohnung befindet sich im 2. Obergeschoss (Lift vorhanden) und bietet eine Nutzfläche von ca. 97 m².
Raumaufteilung:
– 3 Zimmer
– 1 Kabinett
– Küche mit Speis/Abstellraum
– Badezimmer mit Wanne und Waschmaschinenanschluss
– separate
Mehr lesen
Dokumente
Objekt ID: 2330707
Preis: € 669.000
Nutzfläche: 0 m2
Gesamtfläche: 97 m2
Ziimmer insgesamt: 3
Schlafzimmer: 3
Badezimmer: 1
Nutzungsart: Wohnen
Provisionspflichtig: ja
Provision: 3% des Kaufpreises zzgl. 20% USt.
HWB: 177,80 kWh/(m²*a)
HWB Klasse: E
FGEE: 2.44
E-Ausweis Gültig Bis:: 17.05.2031
Energieausweis Art: Bedarf
Beziehbar: sofort
Etage: 2. Etage
WC: 1
Abstellräume: 1
Einbauküche
Personenaufzug
Altbau
Etagenheizung
Gas
Parkett
Badewanne






