Objektbeschreibung
Klimatisierte 110m² DG-Maisonette + 37m² Terrassen und Einbauküche!
Vom Architekten Ende 2015 aufwendig ausgebaute und hochwertig ausgestattete Dachwohnung in einem repräsentativen Altbau-Stilhaus in Toplage. Die Wohnung verfügt über 2 Wohnebenen im DG (mit Lift) und besteht aus 4 Zimmern, davon 3 zentral begehbare Zimmer, 1 großer Wohn-Essbereich mit offener Küche, 2 Bäder (1x mit WC), Vorraum, 1
Mehr lesen
Objekt ID: 2334963
Preis: € 2.349.99
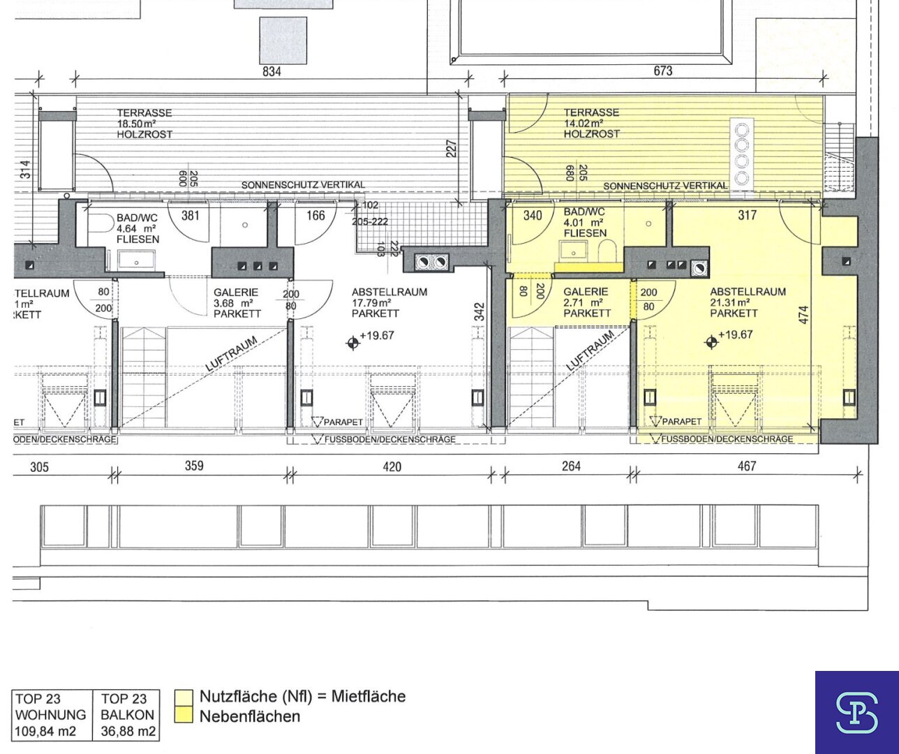
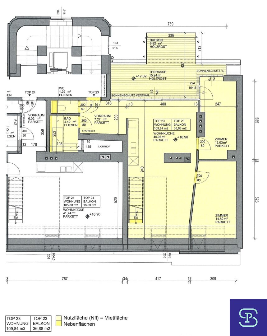
Nutzfläche: 110 m2
Gesamtfläche: 0 m2
Ziimmer insgesamt: 4
Schlafzimmer: 4
Badezimmer: 2
Miete (netto) €: 1824.37
USt €: 213.54
Gesamtbelastung €: 2349.99
Nutzungsart: Wohnen
Provisionspflichtig: nein
HWB: 62,30 kWh/(m²*a)
HWB Klasse: C
FGEE: 1.2
E-Ausweis Gültig Bis:: 01.04.2031
Energieausweis Art: Bedarf
Anzahl Balkone: 1
Balkon/Terrassen - Fläche: 37
Beziehbar: 15.2.2026
Etage: 1. DG / Dachgeschoß
WC: 2
Balkon
Einbauküche
Personenaufzug
Gäste-WC
Altbau
Etagenheizung
Gas
Parkett
Bad mit Fenster
Kabel/Sat-TV
Fahrradraum
offene Küche
Offene Küche
Klimaanlage
Ähnliche Objekte
DONAUBLICK- TOP MODERNE 2 ZIMMER MIT LOGGIA ...
€ 1.390
2
Schlafzimmer
1
Badezimmer
55 m2
Größe
Februar 10, 2026
Erstbezug ab April! Moderne Garconniere mit ...
€ 790
1
Schlafzimmer
1
Badezimmer
33 m2
Größe
Februar 10, 2026






