Objektbeschreibung
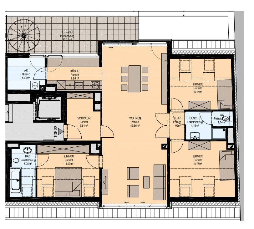
4-ZIMMER-DACHGESCHOSSWOHNUNG MIT TERRASSE IN BESTLAGE – 128 M², MARIANNENGASSE, 1090 WIEN
Diese ca. 128 m² große Wohnung überzeugt durch ihren idealen Grundriss, verteilt auf 4 Zimmer & Küche, sowie durch ihre hervorragende Lage in der Mariannengasse, eingebettet im lebenswerten 9. Wiener Gemeindebezirk Alsergrund.
Die hohe Stockwerkslage (2. Dachgeschoss mit Lift)
Mehr lesen
Objekt ID: 2341621
Preis: € 3.399
Nutzfläche: 127 m2
Gesamtfläche: 0 m2
Ziimmer insgesamt: 4
Schlafzimmer: 4
Badezimmer: 2
Miete/m2 €: 22
Miete (netto) €: 2797.56
USt €: 309
Gesamtbelastung €: 3399
Nutzungsart: Wohnen
Provisionspflichtig: nein
Kaution: 3 Bruttomonatsmieten
HWB: 39,20 kWh/(m²*a)
FGEE: 0.99
Energieausweis Art: Bedarf
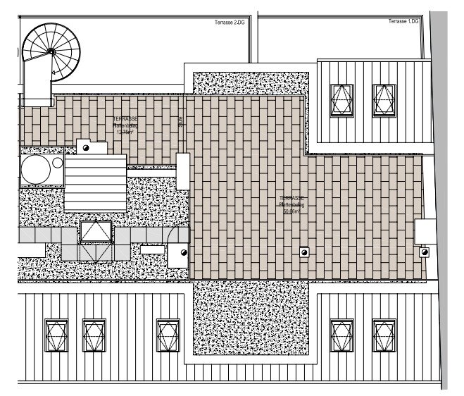
Balkon/Terrassen - Fläche: 84
Beziehbar: 01.03.2026
Etage: 2. DG
WC: 2
Abstellräume: 1
Neubau
Einbauküche
WG-geeignet
Personenaufzug
Etagenheizung
Gas
Bad mit Fenster
Abstellraum
Klimaanlage
Estrich
Ähnliche Objekte
Wunderschöne 2 Zimmer Dachgeschoß-Wohnung im...
€ 1.100
2
Schlafzimmer
1
Badezimmer
70 m2
Größe
Mai 10, 2026
RUHIGE GARTENWOHNUNG // ARCHITEKTENHAUS // D...
€ 945
2
Schlafzimmer
1
Badezimmer
52 m2
Größe
Mai 10, 2026
Wunderschöne Wohnung mit Terrasse – U6...
€ 1.605.38
3
Schlafzimmer
1
Badezimmer
72 m2
Größe
Mai 10, 2026
































