Objektbeschreibung
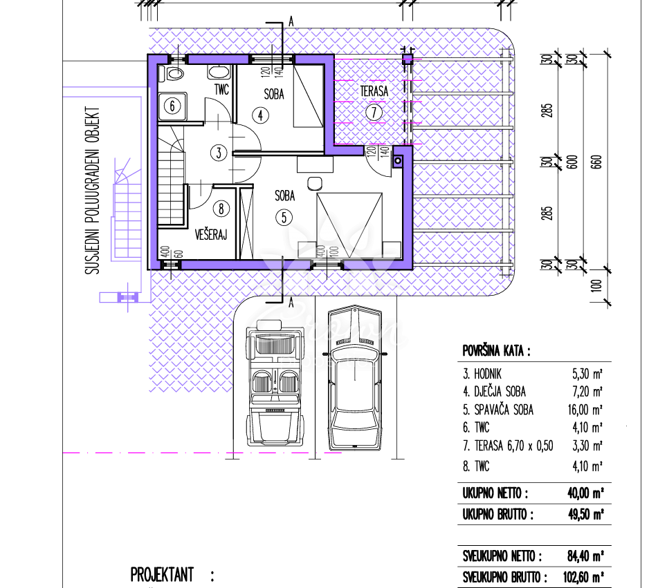
In einer ruhigen Gegend nahe Tinjan befindet sich dieses schöne Doppelhaus mit einer Wohnfläche von 84 m², verteilt auf zwei Etagen.
Im Erdgeschoss befinden sich ein geräumiges Wohnzimmer mit Küche und Essbereich, ein Badezimmer sowie ein Abstellraum. Aus dem Wohnzimmer gelangt man auf die überdachte Terrasse und zum Pool mit
Mehr lesen
Objekt ID: 2347929
Preis: € 320.000
Nutzfläche: 0 m2
Gesamtfläche: 350 m2
Ziimmer insgesamt: 3
Schlafzimmer: 3
Badezimmer: 2
Nutzungsart: Wohnen
Provisionspflichtig: ja

















